
| Item | Part No. | Part Name | Qty | Serial No. |
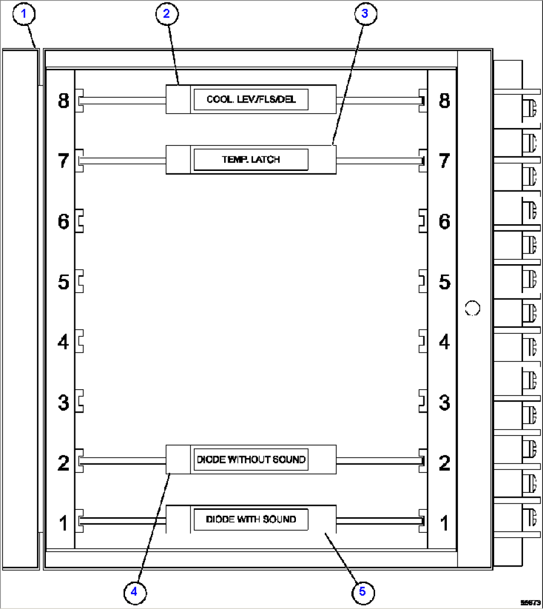
| 1 | VE3422 | BOX (WITHOUT CARDS) | ||
| 1 | BF1539 | CHASSIS ASSEMBLY | ||
| 1 | BF1540 | CARD CAGE ASSEMBLY | ||
| 1 | BF1541 | MOTHERBOARD ASSEMBLY | ||
| 1 | BF1542 | FRONT PANEL ASSEMBLY | ||
| 1 | VE1407 | KNOB | ||
| 1 | BF1552 | RING, RETAINING | ||
| 2 | VJ8805 | CARD, FLASHER/COOLANT LEVEL | ||
| 3 | PB5672 | CARD, TEMPERATURE LATCH | ||
| 4 | VJ9024 | CARD, DIODE (W/O SOUND) | ||
| 5 | VJ9023 | CARD, DIODE (W/SOUND) |
