
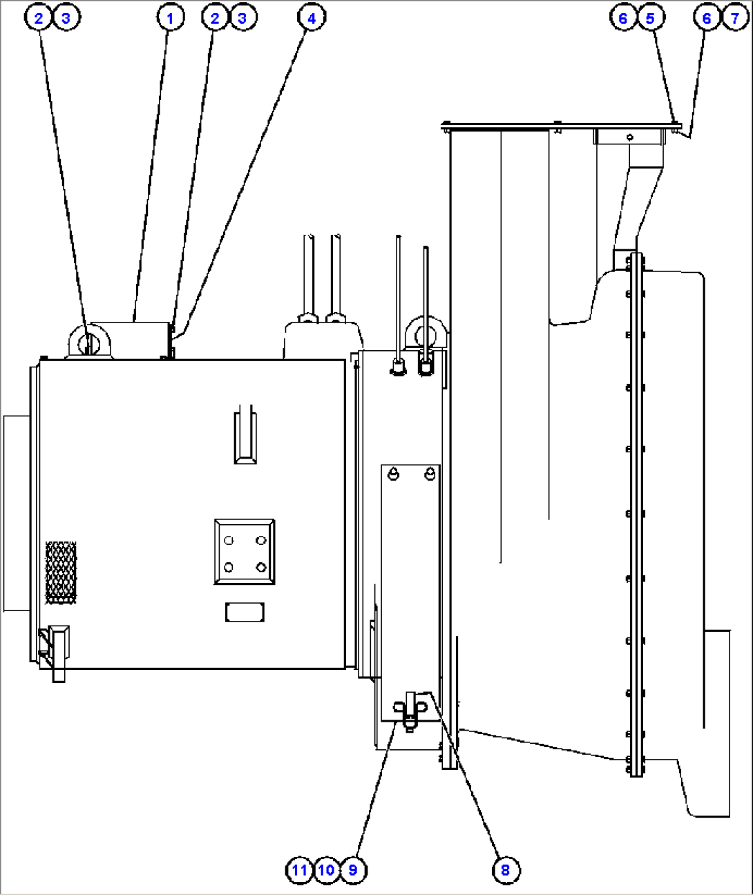
| Item | Part No. | Part Name | Qty | Serial No. |
| 1 | GE0413 | COVER | ||
| 2 | TC1234 | CAPSCREW - 3/8" - 16NC X 3/4" | ||
| 3 | VE4687 | LOCKWASHER - 3/8" | ||
| 4 | GE0396 | PLATE, FRONT | ||
| 5 | VE4739 | CAPSCREW - 3/8" - 16NC X 1" | ||
| 6 | VE4515 | FLAT WASHER - 3/8" | ||
| 7 | GE0796 | NUT - 3/8" - 16NC (SELF LOCKING) | ||
| 8 | VS7026 | LATCH | ||
| 9 | GE1083 | COVER ASSEMBLY | ||
| 10 | GE1173 | GASKET | ||
| 11 | VJ2672 | CEMENT | ||
| 11 | (SEE FOLLOWING PAGES FOR BALANCE OF PC1196 | |||
| 11 | ALTERNATOR/BLOWER ASSEMBLY COMPONENT PARTS.) |
