
| Item | Part No. | Part Name | Qty | Serial No. |
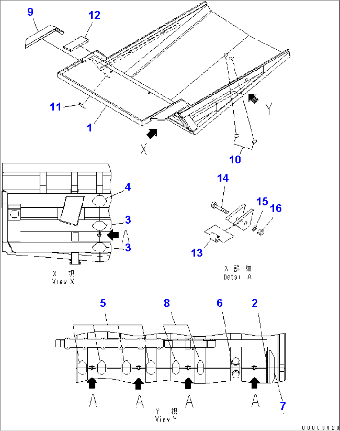
| 1 | 561-74-81103 | BODY ASS'Y | 8082- | |
| 1 | 561-74-81102 | BODY ASS'Y | 7001-8081 | |
| 2 | 561-83-69411 | PLATE | 7001- | |
| 3 | 561-83-69450 | PLATE | 7001- | |
| 4 | 561-83-69440 | PLATE | 7001- | |
| 5 | 561-83-69462 | PLATE | 7001- | |
| 6 | 561-83-89490 | PLATE | 7001- | |
| 7 | 561-83-69481 | PLATE | 7001- | |
| 8 | 561-83-69521 | PLATE | 7001- | |
| 9 | 561-84-81150 | BRACKET | 7001- | |
| 10 | 561-84-81160 | PLATE | 7001- | |
| 11 | 561-84-82320 | PLATE | 7001- | |
| 12 | 561-84-84570 | BRACKET | 7001- | |
| 13 | 581-74-11630 | TUBE | 7001- | |
| 14 | 01011-82010 | BOLT | 7001- | |
| 15 | 01643-32060 | WASHER | 7001- | |
| 16 | 01580-12016 | NUT | 7001- |
