
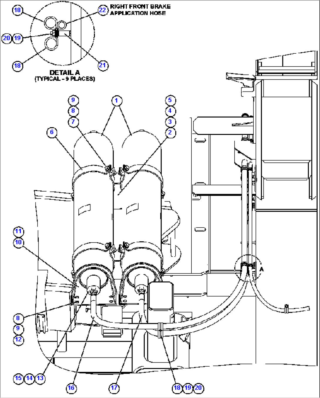
| Item | Part No. | Part Name | Qty | Serial No. |
| 1 | PC1116 | BRAKE ACCUMULATOR (SEE INDEX) | ||
| 2 | EG3874 | CLAMP, ACCUMULATOR MOUNTING | ||
| 3 | C1603 | CAPSCREW - 3/8" - 16NC X 1 1/4" | ||
| 4 | C0312 | LOCKWASHER - 3/8" | ||
| 5 | C1547 | FLAT WASHER - 3/8" | ||
| 6 | EC3036 | CLAMP, HALF | ||
| 7 | MM0086 | CAPSCREW - M16 X 2.00 X 60 | ||
| 8 | MM0706 | FLAT WASHER - M16 (HARDENED) | ||
| 9 | MM0696 | LOCKNUT - M16 X 2.00 | ||
| 10 | EJ7766 | BRACKET, BASE | ||
| 11 | PC1118 | RING, BASE | ||
| 12 | MM0044 | CAPSCREW - M16 X 2.00 X 40 | ||
| 13 | WB0594 | FITTING, STRAIGHT | ||
| 14 | DA6756 | BOSS, O-RING | ||
| 15 | VN9912 | O-RING | ||
| 16 | HA8350 | HOSE (REAR BRAKE ACCUMULATOR) | ||
| 17 | HA8086 | HOSE (FRONTBRAKE ACCUMULATOR) | ||
| 18 | WB3096 | CLAMP, CUSHIONED - 1 1/4" | ||
| 19 | MM0461 | FLAT WASHER - M10 | ||
| 20 | MM0178 | NUT - M10 X 1.50 | ||
| 21 | TY8375 | SPACER | ||
| 22 | WB1303 | CLAMP, CUSHIONED - 3/4" |
