
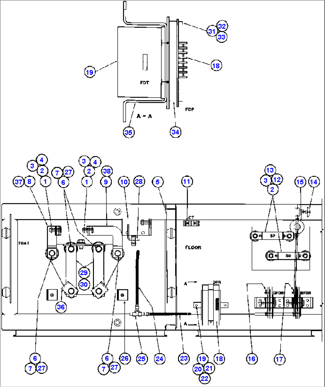
| Item | Part No. | Part Name | Qty | Serial No. |
| 1 | VC6500 | CAPSCREW - 1/2" - 13NC X 2" | ||
| 2 | TR5445 | LOCKWASHER - 1/2" | ||
| 3 | VC7836 | FLAT WASHER - 1/2" | ||
| 4 | TR6643 | NUT - 1/2" - 13NC | ||
| 5 | TY6276 | ARC BARRIER (SIDE SHEET) | ||
| 6 | TR9082 | FLAT WASHER - 5/8" | ||
| 7 | VC1390 | LOCKWASHER - 5/8" | ||
| 8 | EC4184 | BAR, BUS - 7J7-L | ||
| 9 | EC4186 | BAR, BUS - 7J8-Z | ||
| 10 | TY2724 | BAR, BUS | ||
| 11 | PB4262 | TRANSFORMER, CURRENT | ||
| 12 | VC1387 | CAPSCREW - 1/2" - 13NC X 1" | ||
| 13 | PB3347 | SHUNT | ||
| 14 | TA8472 | SWITCH, PRESSURE | ||
| 15 | VY7272 | REGULATOR, PRESSURE (SEE INDEX) | ||
| 16 | PB5230 | RESISTOR | ||
| 17 | PB7875 | RESISTOR | ||
| 18 | PB6117 | PANEL, FAULT - DETECTION | ||
| 19 | PB3167 | TRANSFORMER, FAULT - DETECTION | ||
| 20 | TV0177 | FLAT WASHER - 5/16" | ||
| 21 | SC4174 | LOCKWASHER - 5/16" | ||
| 22 | TD1684 | NUT - 5/16" - 18NC | ||
| 23 | HA3622 | HOSE | ||
| 24 | VM4221 | HOSE | ||
| 25 | WA2558 | FITTING, TUBE | ||
| 26 | TY6291 | BRACKET | ||
| 27 | TR2961 | CAPSCREW - 5/8" - 11NC X 1" | ||
| 28 | TN9637 | BAR, BUS | ||
| 29 | TK5255 | BAR, BUS | ||
| 30 | VC5162 | CAPSCREW - 5/8" - 11NC X 1 1/4" | ||
| 31 | DC3101 | LOCKWASHER - #10 | ||
| 32 | VC5344 | FLAT WASHER - #10 | ||
| 33 | SF2755 | NUT - #10 - 32NF | ||
| 34 | PB3606 | SPACER | ||
| 35 | PB3605 | CLAMP | ||
| 36 | EB7683 | BAR, BUS | ||
| 37 | EC4185 | BAR, BUS - 7JJ-F | ||
| 38 | EC4187 | BAR, BUS - 7J8-L |
