
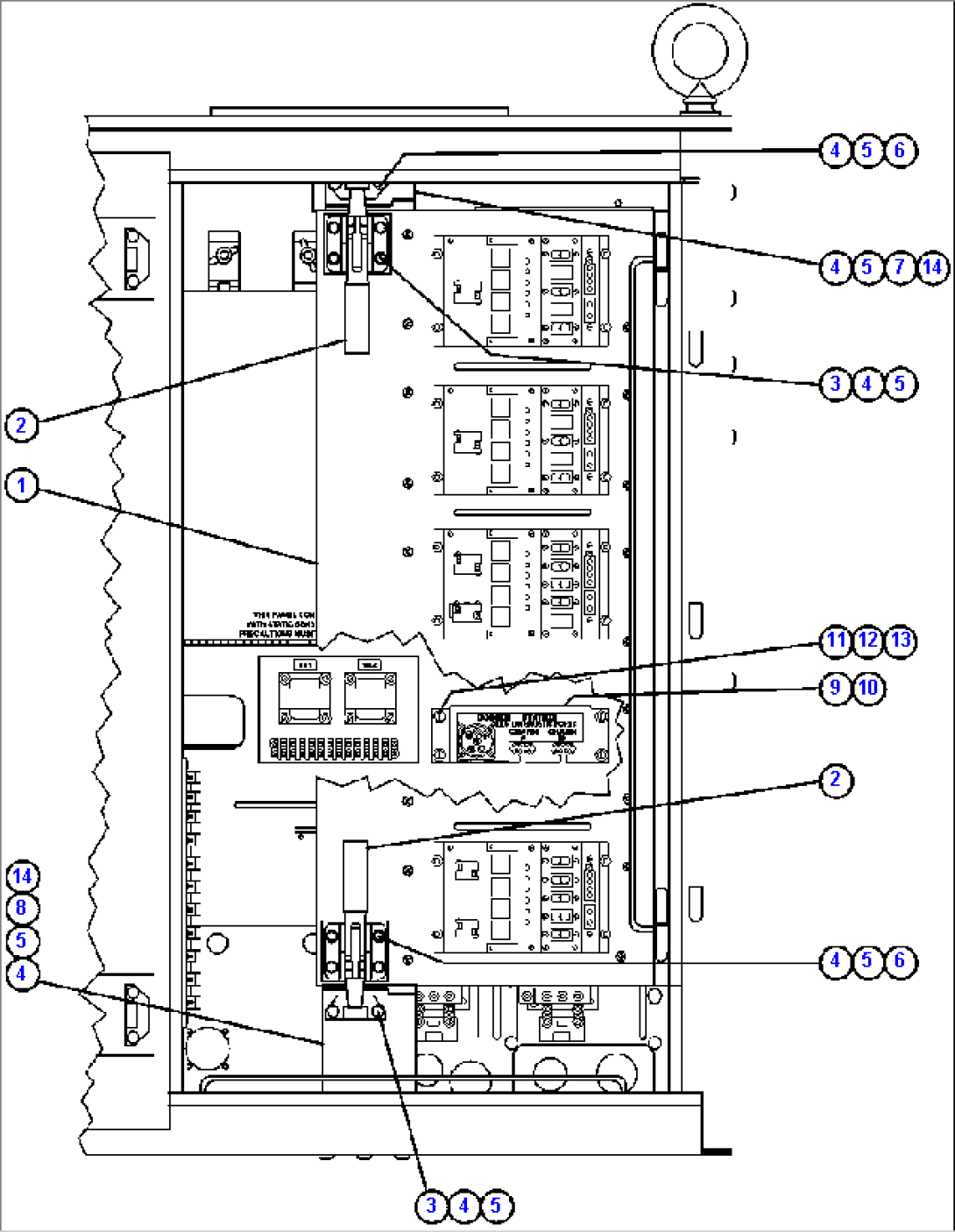
| Item | Part No. | Part Name | Qty | Serial No. |
| 1 | EG8423 | PANEL, SWING-OUT | ||
| 2 | PB1006 | LATCH AND KEEPER SET | ||
| 3 | MM0019 | CAPSCREW - M6 X 1.00 X 16 | ||
| 4 | MM0459 | FLAT WASHER - M6 | ||
| 5 | MM0469 | LOCKWASHER - M6 | ||
| 6 | MM0027 | CAPSCREW - M6 X 1.00 X 25 | ||
| 7 | EH0181 | BRACKET, DOOR STOP | ||
| 8 | EH0176 | BRACKET, DOOR STOP | ||
| 9 | WB2077 | DECAL, DIAGNOSTIC | ||
| 10 | ED2918 | BRACKET, DIAGNOSTIC PARTS MOUNT | ||
| 11 | 30481R1 | FLAT WASHER - M5 | ||
| 12 | MM0206 | LOCKWASHER - M5 | ||
| 13 | MM0373 | NUT - M5 | ||
| 14 | MM0176 | NUT - M6 |
