| Item | Part No. | Part Name | Qty | Serial No. |
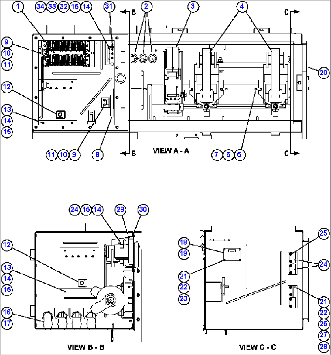
| 1 | GE0152 | RESISTOR PANEL | | |
| 1 | VJ9059 | RESISTOR | | |
| 1 | PB2685 | CONTACT CLIP ASSEMBLY | | |
| 2 | GE0861 | GROMMET | | |
| 3 | PB6137 | CONTACTOR ASSEMBLY | | |
| 3 | VE3530 | INTERLOCK, POSITION SENSOR (SEE INDEX) | | |
| 3 | VE1317 | CONTACTOR - GF & GFR (SEE INDEX) | | |
| 4 | GE0647 | CONTACTOR ASSEMBLY - R.P. (SEE INDEX) | | |
| 5 | VE4687 | LOCKWASHER - 3/8" | | |
| 6 | VE4515 | FLAT WASHER - 3/8" | | |
| 7 | TC1233 | NUT - 3/8" - 16NC | | |
| 8 | PB5230 | RESISTOR, THYRITE | | |
| 9 | GE1381 | FLAT WASHER - 5/16" | | |
| 10 | VE4696 | LOCKWASHER - 5/16" | | |
| 11 | VE5013 | NUT - 5/16" - 18NC | | |
| 12 | GE0857 | PANEL ASSEMBLY | | |
| 13 | SP8417 | FLAT WASHER - 1/4" | | |
| 14 | DC3584 | LOCKWASHER - 1/4" | | |
| 15 | TD1549 | NUT - 1/4" - 20NC | | |
| 16 | PB3348 | INSULATOR | | |
| 17 | XA3143 | STUD | | |
| 18 | GE0177 | BOARD, PRINTED WIRE | | |
| 19 | PB3606 | SPACER | | |
| 20 | XA3129 | CAP, LENS | | |
| 21 | VE4601 | LOCKWASHER - #10 | | |
| 22 | SF2755 | NUT - #10 - 32NF | | |
| 23 | VS6662 | FLAT WASHER - #10 | | |
| 24 | BF4452 | MODULE, SUPPRESSION | | |
| 25 | VE4921 | CAPSCREW - #10 - 32NF X 1" | | |
| 26 | VE4655 | FLAT WASHER - #10 | | |
| 27 | GE0219 | SUPPORT, MODULE | | |
| 28 | GE0220 | SUPPORT, MODULE | | |
| 29 | VJ6457 | SHIELD | | |
| 30 | VJ6456 | SHIELD | | |
| 31 | VG7043 | RELAY - CPR & GFR (SEE INDEX) | | |
| 32 | VE7237 | CAPSCREW - 1/4" - 20NC | | |
| 33 | VE7202 | WASHER - 1/4" (SPECIAL) | | |
| 34 | VJ6455 | BASE | | |