
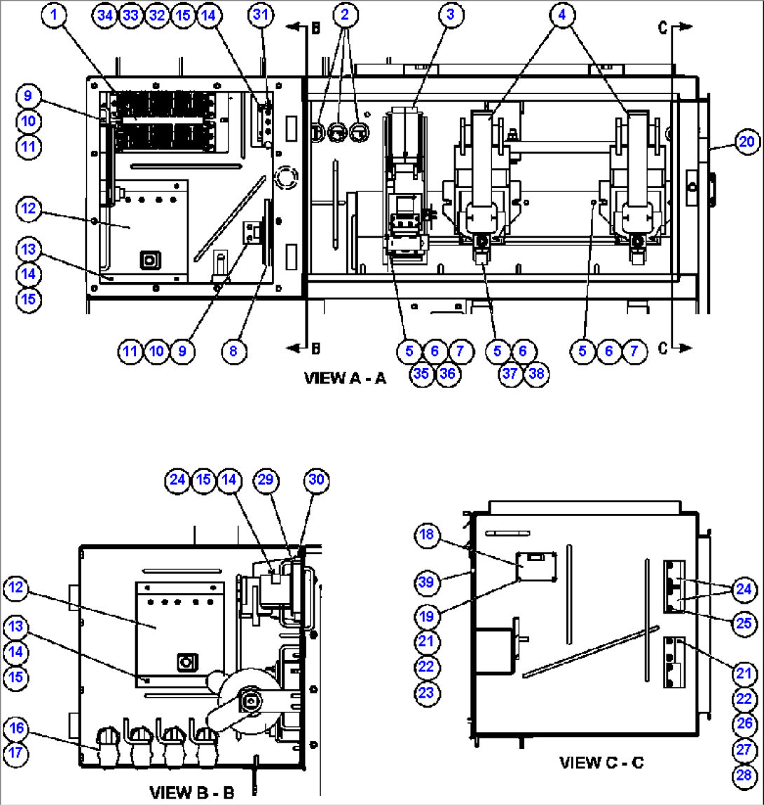
| Item | Part No. | Part Name | Qty | Serial No. |
| 1 | GE0152 | RESISTOR PANEL | ||
| 1 | VJ9059 | RESISTOR | ||
| 1 | PB2685 | CONTACT CLIP ASSEMBLY | ||
| 2 | GE0861 | GROMMET | ||
| 3 | PB6137 | CONTACTOR ASSEMBLY | ||
| 3 | VE3530 | INTERLOCK, POSITION SENSOR (SEE INDEX) | ||
| 3 | VE1317 | CONTACTOR - GF & GFR (SEE INDEX) | ||
| 4 | GE0647 | CONTACTOR ASSEMBLY - R.P. (SEE INDEX) | ||
| 5 | VE4687 | LOCKWASHER - 3/8" | ||
| 6 | VE4515 | FLAT WASHER - 3/8" | ||
| 7 | TC1233 | NUT - 3/8" - 16NC | ||
| 8 | PB5230 | RESISTOR, THYRITE | ||
| 9 | GE1381 | FLAT WASHER - 5/16" | ||
| 10 | VE4696 | LOCKWASHER - 5/16" | ||
| 11 | VE5013 | NUT - 5/16" - 18NC | ||
| 12 | GE0857 | PANEL ASSEMBLY | ||
| 13 | SP8417 | FLAT WASHER - 1/4" | ||
| 14 | DC3584 | LOCKWASHER - 1/4" | ||
| 15 | TD1549 | NUT - 1/4" - 20NC | ||
| 16 | PB3348 | INSULATOR | ||
| 17 | XA3143 | STUD | ||
| 18 | GE0177 | BOARD, PRINTED WIRE | ||
| 19 | PB3606 | SPACER | ||
| 20 | XA3129 | CAP, LENS | ||
| 21 | VE4601 | LOCKWASHER - #10 | ||
| 22 | SF2755 | NUT - #10 - 32NF | ||
| 23 | VS6662 | FLAT WASHER - #10 | ||
| 24 | BF4452 | MODULE, SUPPRESSION | ||
| 25 | VE4921 | CAPSCREW - #10 - 32NF X 1" | ||
| 26 | VE4655 | FLAT WASHER - #10 | ||
| 27 | GE0219 | SUPPORT, MODULE | ||
| 28 | GE0220 | SUPPORT, MODULE | ||
| 29 | VJ6457 | SHIELD | ||
| 30 | VJ6456 | SHIELD | ||
| 31 | VG7043 | RELAY - CPR & GFR (SEE INDEX) | ||
| 32 | VE7237 | CAPSCREW - 1/4" - 20NC | ||
| 33 | VE7202 | WASHER - 1/4" (SPECIAL) | ||
| 34 | VJ6455 | BASE | ||
| 35 | BF4223 | BOLT, INSULATED | ||
| 36 | BF3904 | INSULATION | ||
| 37 | VE4640 | CAPSCREW - 3/8" - 16NC X 1 1/2" | ||
| 38 | GE1397 | BUS, BAR | ||
| 39 | GE1416 | GROMMET |
