Ваш браузер устарел. Этот сайт может работать неполноценно или выглядеть сломанным. Обновите ваш браузер, если можете.

Поиск по каталогу

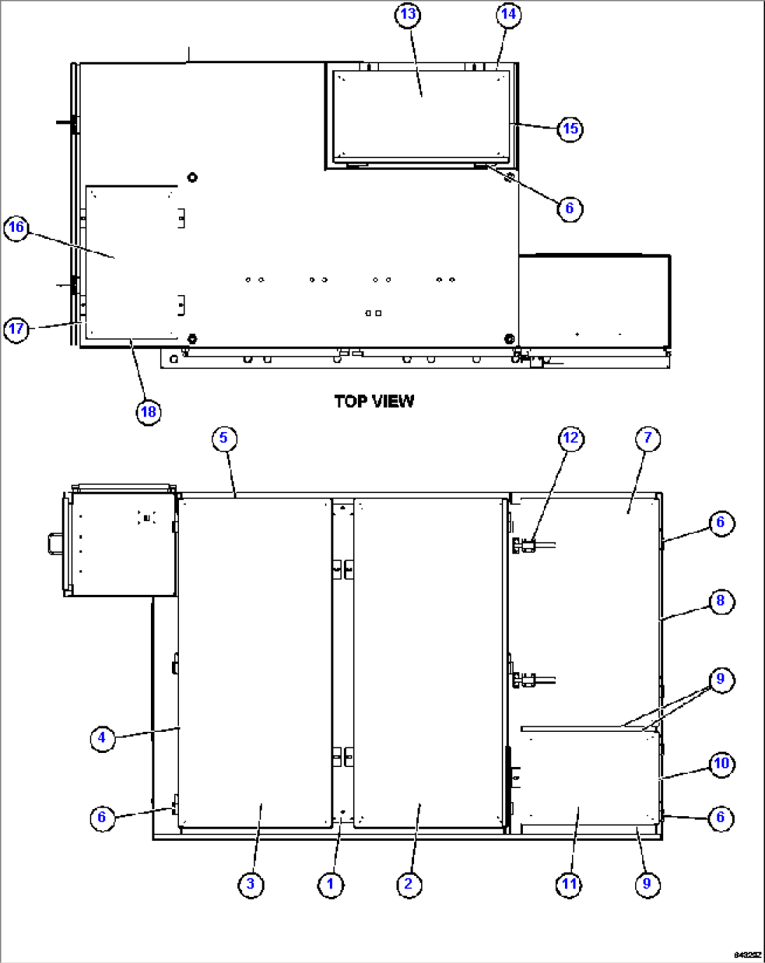
CONTROL CABINET - DOORS & COVERS 1/2 GE1767

CONTROL CABINET - DOORS & COVERS 1/2 GE1767
ItemPart No.Part NameQtySerial No.
1GE1768DOOR POST
2GE1783DOOR ASSEMBLY
3GE1786DOOR ASSEMBLY
4GE1784GASKET - 64.06"
5GE1785GASKET - 29.57" (1)
6GE1771HINGE
7GE1781DOOR ASSEMBLY
8GE1782GASKET - 44.29"
9GE1776GASKET - 26.62"
10GE1777GASKET - 17.85" (1)
11GE1775DOOR ASSEMBLY
12GE1242LATCH & KEEPER
13GE1778DOOR ASSEMBLY
14GE1779GASKET - 34.17"
15GE1780GASKET - 17.30" (1)
16GE1773DOOR ASSEMBLY
17GE1772GASKET - 17.54" (1)
18GE1774GASKET - 29.41"
NS|19NOTE: (1) USE VJ2672 CEMENT TO INSTALL THE GASKET.
Вернуться в каталог

Заявка

Обратная связь