
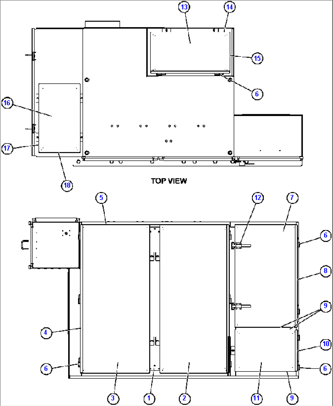
| Item | Part No. | Part Name | Qty | Serial No. |
| 1 | GE1768 | DOOR POST | ||
| 2 | GE1783 | DOOR ASSEMBLY | ||
| 3 | GE1786 | DOOR ASSEMBLY | ||
| 4 | GE1784 | GASKET - 64.06" | ||
| 5 | GE1785 | GASKET - 29.57" (1) | ||
| 6 | GE1771 | HINGE | ||
| 7 | GE1781 | DOOR ASSEMBLY | ||
| 8 | GE1782 | GASKET - 44.29" | ||
| 9 | GE1776 | GASKET - 26.62" | ||
| 10 | GE1777 | GASKET - 17.85" (1) | ||
| 11 | GE1775 | DOOR ASSEMBLY | ||
| 12 | GE1242 | LATCH & KEEPER | ||
| 13 | GE1778 | DOOR ASSEMBLY | ||
| 14 | GE1779 | GASKET - 34.17" | ||
| 15 | GE1780 | GASKET - 17.30" (1) | ||
| 16 | GE1773 | DOOR ASSEMBLY | ||
| 17 | GE1772 | GASKET - 17.54" (1) | ||
| 18 | GE1774 | GASKET - 29.41" | ||
| NS|19 | NOTE: (1) USE VJ2672 CEMENT TO INSTALL THE GASKET. |
