
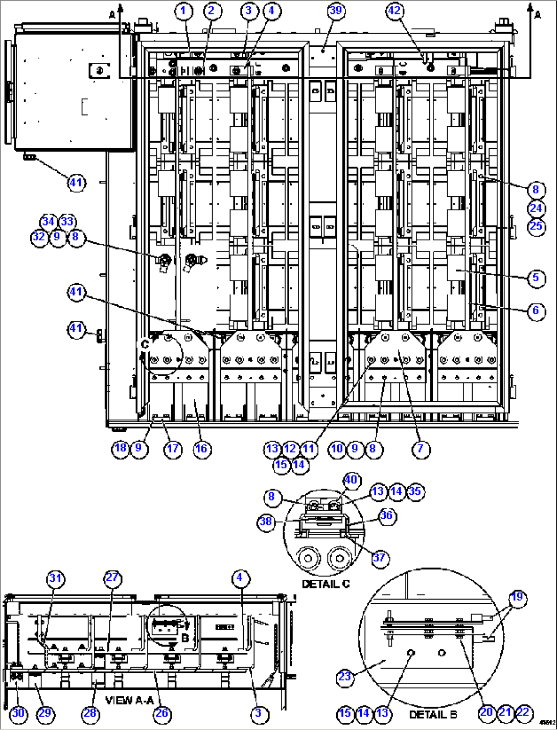
| Item | Part No. | Part Name | Qty | Serial No. |
| 1 | GE1398 | BUS BAR | ||
| 2 | GE1399 | BUS BAR | ||
| 3 | GE1406 | BUS BAR | ||
| 4 | XA4249 | BUS BAR | ||
| 5 | XA4290 | FUSE, IGBT | ||
| 6 | GE1412 | BUS BAR, VERTICAL | ||
| 7 | 58B-43-00660 | BUS BAR, IGBT | ||
| 8 | VE4698 | NUT - 1/2" - 13NC | ||
| 9 | VE4699 | LOCKWASHER - 1/2" | ||
| 10 | VE4490 | FLAT WASHER - 1/2" | ||
| 11 | VE4640 | CAPSCREW - 3/8" - 16NC X 1 1/2" | ||
| 12 | VE3918 | FLAT WASHER - 3/8" | ||
| 13 | VE4515 | FLAT WASHER - 3/8" | ||
| 14 | VE4687 | LOCKWASHER - 3/8" | ||
| 15 | VE4700 | NUT - 3/8" - 16NC | ||
| 16 | XA4876 | CAPACITOR, IGBT INVERTER | ||
| 17 | XA5273 | SPACER | ||
| 18 | VE4518 | CAPSCREW - 1/2" - 13NC X 1 1/2" | ||
| 19 | XA4327 | RESISTOR, CDI | ||
| 20 | GE1388 | STUD - #10 - 32NC X 1 3/8" | ||
| 21 | VE4655 | FLAT WASHER - #10 | ||
| 22 | VE4602 | NUT - #10 - 32NF | ||
| 23 | XA3593 | SUPPORT | ||
| 24 | VE4519 | FLAT WASHER - 1/2" | ||
| 25 | GE1384 | STUD | ||
| 26 | GE1402 | BUS BAR | ||
| 27 | GE1401 | BUS BAR | ||
| 28 | XA5277 | BUS BAR | ||
| 29 | XA5279 | BUS BAR | ||
| 30 | GE1396 | BUS BAR | ||
| 31 | GE1399 | BUS BAR | ||
| 32 | PB3348 | INSULATOR | ||
| 33 | GE0579 | STUD | ||
| 34 | GE1409 | BUS BAR | ||
| 35 | XA4286 | SCREW | ||
| 36 | XA4577 | BRACKET | ||
| 37 | XA5282 | GASKET, NEOPRENE | ||
| 38 | VE4243 | WASHER, CONCAVE | ||
| 39 | GE0236 | WASHER | ||
| 40 | XA4497 | ANGLE ASSEMBLY | ||
| 41 | VS9008 | CONNECTOR | ||
| 42 | XA5285 | RESISTOR ASSEMBLY | ||
| 42 | GE0867 | RESISTOR - 50 OHM, 50W | ||
| 42 | VS6823 | RESISTOR - 10 OHM, 50W |
