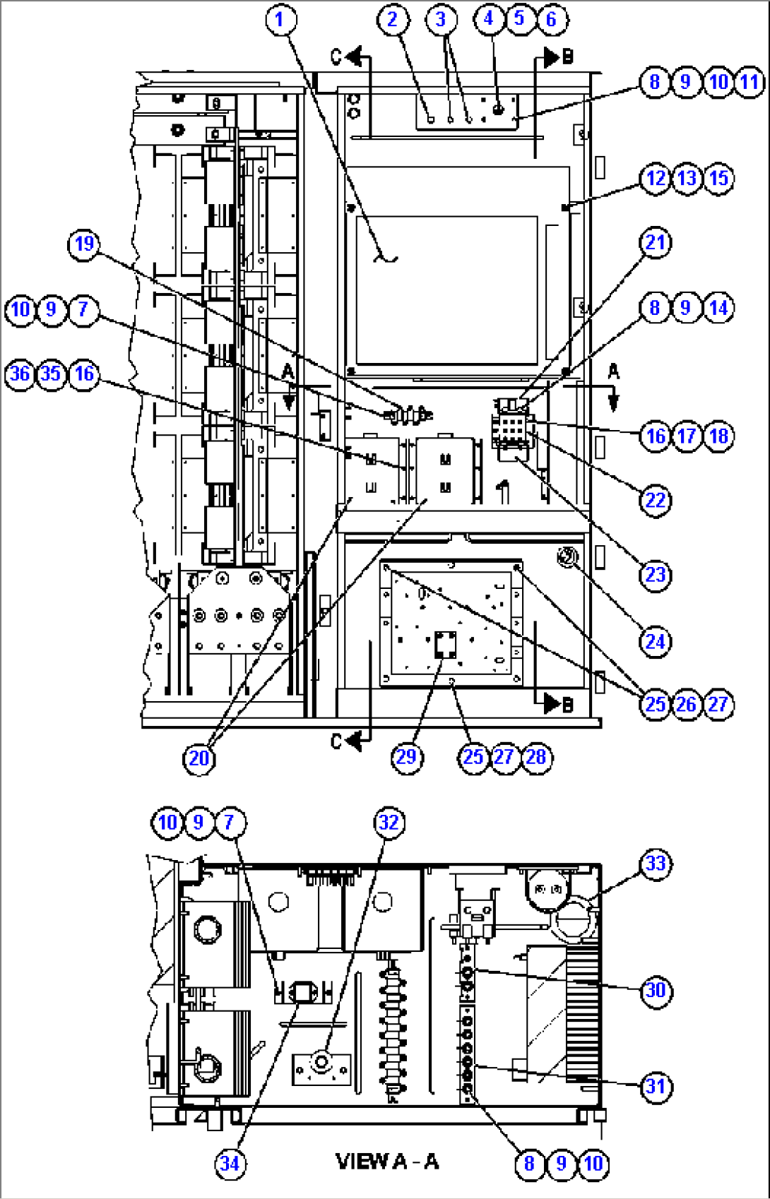
| Item | Part No. | Part Name | Qty | Serial No. |
| 1 | GE1302 | PANEL, ICP (SEE INDEX) | | |
| 2 | GE0176 | SWITCH, TOGGLE | | |
| 3 | GE0174 | SWITCH, TOGGLE | | |
| 4 | GE0177 | BOARD, PRINTED WIRE | | |
| 5 | XA3129 | CAP, LENS | | |
| 6 | XA3130 | ADAPTER | | |
| 7 | VE4655 | FLAT WASHER - #10 | | |
| 8 | VS6662 | FLAT WASHER - #10 | | |
| 9 | VE4601 | LOCKWASHER - #10 | | |
| 10 | SF2755 | NUT - #10 - 32NF | | |
| 11 | PB3606 | SPACER | | |
| 12 | GE1381 | FLAT WASHER - 5/16" | | |
| 13 | VE4696 | LOCKWASHER - 5/16" | | |
| 14 | GE1386 | MACHINE SCREW - #10 - 32NC X 1 5/8" | | |
| 15 | BF4222 | CAPSCREW - 5/16" - 18NC X 3" | | |
| 16 | DC3584 | LOCKWASHER - 1/4" | | |
| 17 | VE7202 | WASHER - 1/4" (SPECIAL) | | |
| 18 | VE5882 | CAPSCREW - 1/4" - 20NC X 7/8" | | |
| 19 | VS6690 | BOARD, TERMINAL | | |
| 20 | GE1257 | CONVERTER, GATE DRIVER | | |
| 21 | VE7355 | MODULE, DIODE | | |
| 22 | VG7043 | RELAY - CPR & GFR (SEE INDEX) | | |
| 23 | BF4452 | MODULE, SUPPRESSION | | |
| 24 | GE0240 | GROMMET | | |
| 25 | VE4687 | LOCKWASHER - 3/8" | | |
| 26 | TC1233 | NUT - 3/8" - 16NC | | |
| 27 | GE0759 | FLAT WASHER - 3/8" (HARDENED) | | |
| 28 | VE4641 | CAPSCREW - 3/8" - 16NC X 1 1/4" | | |
| 29 | GE0858 | PANEL, A.F.S.E. (SEE INDEX) | | |
| 30 | GE1417 | RESISTOR | | |
| 31 | GE0870 | RESISTOR PANEL | | |
| 32 | XA3142 | SENSOR, PRESSURE | | |
| 33 | XA3724 | GROMMET | | |
| 34 | GE0510 | DIODE ASSEMBLY | | |
| 35 | TD1549 | NUT - 1/4" - 20NC | | |
| 36 | VE7237 | CAPSCREW - 1/4" - 20NC | | |
| 36 | | (FOR VIEWS B-B & C-C, SEE THE FOLLOWING PAGE.) | | |