
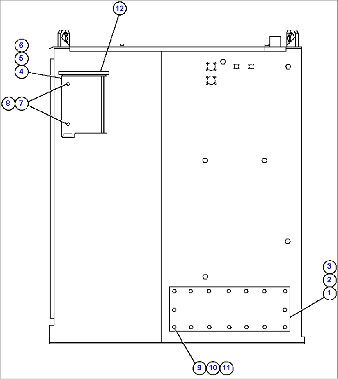
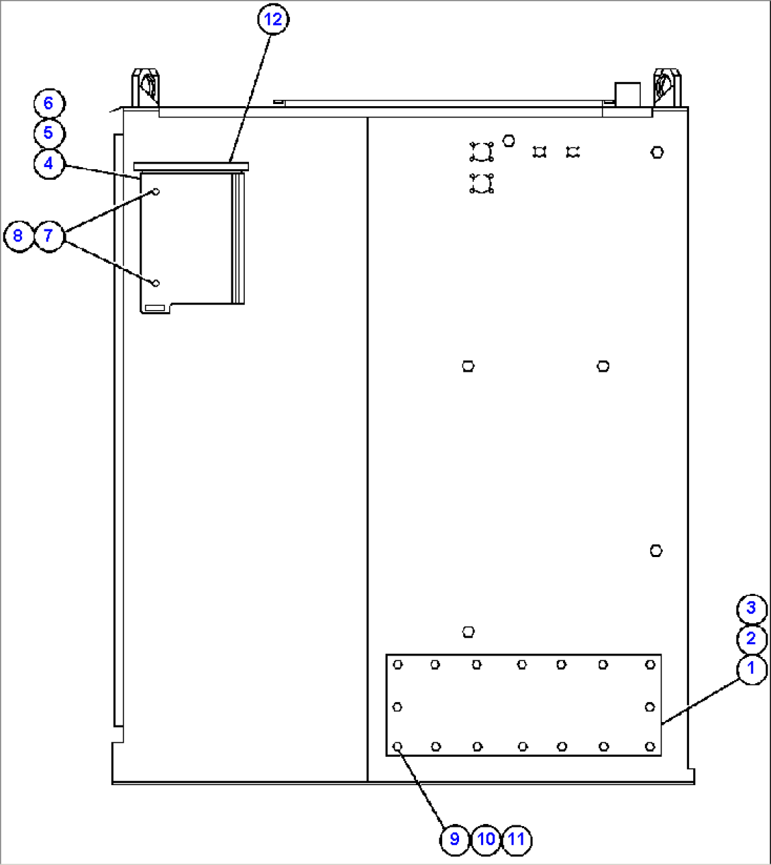
| Item | Part No. | Part Name | Qty | Serial No. |
| 1 | VE3035 | PYTHON - #1062 | ||
| 2 | GE0265 | GASKET | ||
| 3 | GE0267 | COVER | ||
| 4 | GE0260 | COVER, SYSTEM CONTROL | ||
| 4 | WB2224 | DECAL, INFORMATIONAL DISPLAY | ||
| 5 | BF3885 | HINGE | ||
| 6 | BF3895 | GASKET | ||
| 7 | GE0293 | SCREW, COVER | ||
| 8 | GE0294 | RETAINER, SCREW | ||
| 9 | VE4349 | CAPSCREW | ||
| 10 | VE5762 | FLAT WASHER | ||
| 11 | VE4696 | LOCKWASHER | ||
| 12 | BF4304 | RAIL, DRIP | ||
| NS|14 | NOTE: NS = NOT SHOWN | |||
| NS|15 | WB2515 | DECAL, INFORMATION DISPLAY (OUTSIDE DOOR) (SPANISH) | ||
| NS|16 | WB2516 | DECAL, HIGH VOLTAGE (INSIDE DOOR) (SPANISH) |
