
| Item | Part No. | Part Name | Qty | Serial No. |
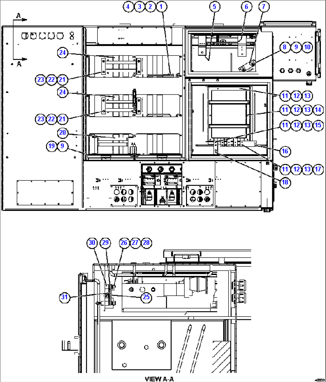
| 1 | BF0931 | PANEL, AIR TEMPERATURE | ||
| 1 | VE5042 | BOARD, TERMINAL | ||
| 1 | BF0932 | SENSOR, THERMISTOR | ||
| 2 | VE5013 | NUT - 5/16" - 18NC | ||
| 3 | VE4696 | LOCKWASHER - 5/16" | ||
| 4 | VE4343 | FLAT WASHER - 5/16" | ||
| 5 | XA5277 | BUS BAR | ||
| 6 | XA5279 | BUS BAR | ||
| 7 | GE0756 | SENSOR, LINK | ||
| 8 | VE4602 | NUT - #10 - 32NF | ||
| 9 | VE4601 | LOCKWASHER - #10 | ||
| 10 | VE4655 | FLAT WASHER - #10 | ||
| 11 | VE4700 | NUT - 3/8" - 16NC | ||
| 12 | VE4687 | LOCKWASHER - 3/8" | ||
| 13 | VE4515 | FLAT WASHER - 3/8" | ||
| 14 | VE4640 | CAPSCREW - 3/8" - 16NC X 1 1/2" | ||
| 15 | XA4255 | CAPSCREW - 3/8" - 16NC X 2" | ||
| 16 | XA5280 | BUS BAR | ||
| 17 | VE4500 | CAPSCREW - 3/8" - 16NC X 1 3/4" | ||
| 18 | XA5276 | BUS BAR | ||
| 19 | VE4608 | SCREW | ||
| 20 | GE0148 | PANEL ASSEMBLY, FILTER | ||
| 20 | VE4379 | RESISTOR | ||
| 20 | VE0066 | RESISTOR - 250 OHM | ||
| 20 | VE3846 | CAPACITOR | ||
| 21 | VE4902 | NUT - 1/4" - 20NC | ||
| 22 | XA5003 | LOCKWASHER - 1/4" | ||
| 23 | XA4233 | FLAT WASHER - 1/4" | ||
| 24 | GE0860 | RESISTOR | ||
| 24 | GE1177 | RESISTOR | ||
| 24 | VE1959 | BUSHING | ||
| 24 | GE1342 | STRIP, CONNECTION | ||
| 25 | 58B-43-00310 | SHIELD, GLASTIC | ||
| 26 | VE4602 | NUT - #10 - 32NF | ||
| 27 | VE4601 | LOCKWASHER - #10 | ||
| 28 | VE4600 | FLAT WASHER - #10 | ||
| 29 | 58B-43-00250 | FLAT WASHER | ||
| 30 | PB3606 | SPACER | ||
| 31 | GE0177 | BOARD, PRINTED WIRE |
