
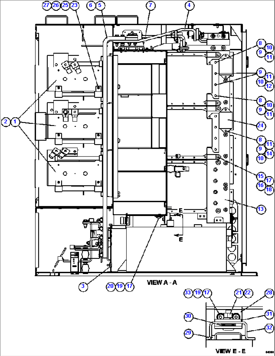
| Item | Part No. | Part Name | Qty | Serial No. |
| 1 | GE0876 | BASE ASSEMBLY | ||
| 2 | GE1387 | PANEL, RECTIFIER (IGBT) | ||
| 2 | 58E-43-10010 | DIODE | ||
| 3 | GE0240 | GROMMET | ||
| 4 | GE1400 | BUS BAR | ||
| 5 | GE1403 | BUS BAR | ||
| 6 | GE1404 | BUS BAR | ||
| 7 | XA3594 | BUS BAR | ||
| 8 | BF0543 | CAPSCREW - 5/16" - 18NC X 2 1/2" | ||
| 9 | GE1383 | FLAT WASHER - 11/16" | ||
| 10 | VE4696 | LOCKWASHER - 5/16" | ||
| 11 | VE5013 | NUT - 5/16" - 18NC | ||
| 12 | GE1380 | CAPSCREW - 5/16" - 18NC X 2" | ||
| 13 | GE1412 | BUS BAR, VERTICAL | ||
| 14 | VE4343 | FLAT WASHER - 5/16" | ||
| 15 | GE1382 | CAPSCREW - 3/8" - 16NC X 5 1/2" | ||
| 16 | VE3918 | WASHER | ||
| 17 | VE4687 | LOCKWASHER - 3/8" | ||
| 18 | TC1233 | NUT - 3/8" - 16NC | ||
| 19 | VE4515 | FLAT WASHER - 3/8" | ||
| 20 | VE4739 | CAPSCREW - 3/8" - 16NC X 1" | ||
| 21 | VE4699 | LOCKWASHER - 1/2" | ||
| 22 | VE4698 | NUT - 1/2" - 13NC | ||
| 23 | VE5169 | FLAT WASHER - 5/8" | ||
| 24 | XA4290 | FUSE, IGBT | ||
| 25 | GE0862 | STUD | ||
| 26 | GE0045 | NUT - 5/8" - 11NC | ||
| 27 | VC1390 | LOCKWASHER - 5/8" | ||
| 28 | XA4497 | ANGLE | ||
| 29 | XA5282 | GASKET, NEOPRENE | ||
| 30 | VE4243 | WASHER, CONCAVE | ||
| 31 | XA4878 | CLAMP | ||
| 32 | XA4577 | BRACKET | ||
| 33 | XA4286 | CAPSCREW |
