
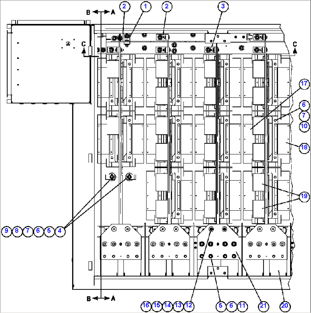
| Item | Part No. | Part Name | Qty | Serial No. |
| 1 | XA3595 | BUS BAR | ||
| 2 | GE1406 | BUS BAR | ||
| 3 | GE1407 | BUS BAR | ||
| 4 | GE0579 | STUD | ||
| 5 | VE4699 | LOCKWASHER - 1/2" | ||
| 6 | VE4698 | NUT - 1/2" - 13NC | ||
| 7 | VE4519 | FLAT WASHER - 1/2" | ||
| 8 | GE1409 | BUS BAR | ||
| 9 | PB3348 | INSULATOR | ||
| 10 | GE1384 | STUD | ||
| 11 | VE4490 | FLAT WASHER - 1/2" | ||
| 12 | VE3918 | WASHER | ||
| 13 | VE4687 | LOCKWASHER - 3/8" | ||
| 14 | VE4515 | FLAT WASHER - 3/8" | ||
| 15 | TC1233 | NUT - 3/8" - 16NC | ||
| 16 | VE4640 | CAPSCREW - 3/8" - 16NC X 1 1/2" | ||
| 17 | GE1255 | INVERTER, IGBT (+) | ||
| 18 | GE1256 | INVERTER, IGBT (-) | ||
| 19 | GE1298 | FUSE, IGBT | ||
| 20 | GE1296 | CAPACITOR, FILTER | ||
| 21 | GE1413 | BUS BAR | ||
| 21 | (FOR VIEWS A-A, B-B & C-C, SEE THE FOLLOWING PAGES.) |
