
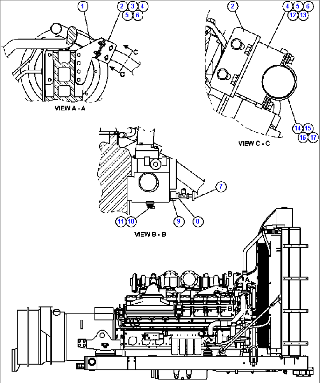
| Item | Part No. | Part Name | Qty | Serial No. |
| 1 | EL2391 | PLATE, BENT | ||
| 2 | EL2034 | PLATE, BENT | ||
| 3 | MM0607 | CAPSCREW - M10 X 1.50 X 35 | ||
| 4 | MM0719 | NUT, HEX - M10 X 1.50 | ||
| 5 | MM0471 | LOCKWASHER - M10 | ||
| 6 | MM0713 | FLAT WASHER - 7/16" (HARDENED) | ||
| 7 | VN6280 | VALVE, WATER SHUT-OFF | ||
| 8 | SD5209 | PIPE, BUSHING - 3/4" X 3/8" | ||
| 9 | PC1780 | ADAPTER, CONVERSION | ||
| 10 | PC0607 | SENDER, COOLANT TEMPERATURE | ||
| 11 | WB1185 | WASHER, METRIC - 22 MM | ||
| 12 | EL0668 | BRACKET | ||
| 13 | MM0606 | CAPSCREW - M10 X 1.50 X 30 | ||
| 14 | EH3195 | SHEET, BENT | ||
| 15 | TC1234 | CAPSCREW - 3/8" - 16NC X 3/4" | ||
| 16 | TR4436 | FLAT WASHER - 3/8" | ||
| 17 | TC1231 | LOCKWASHER - 3/8" |
