
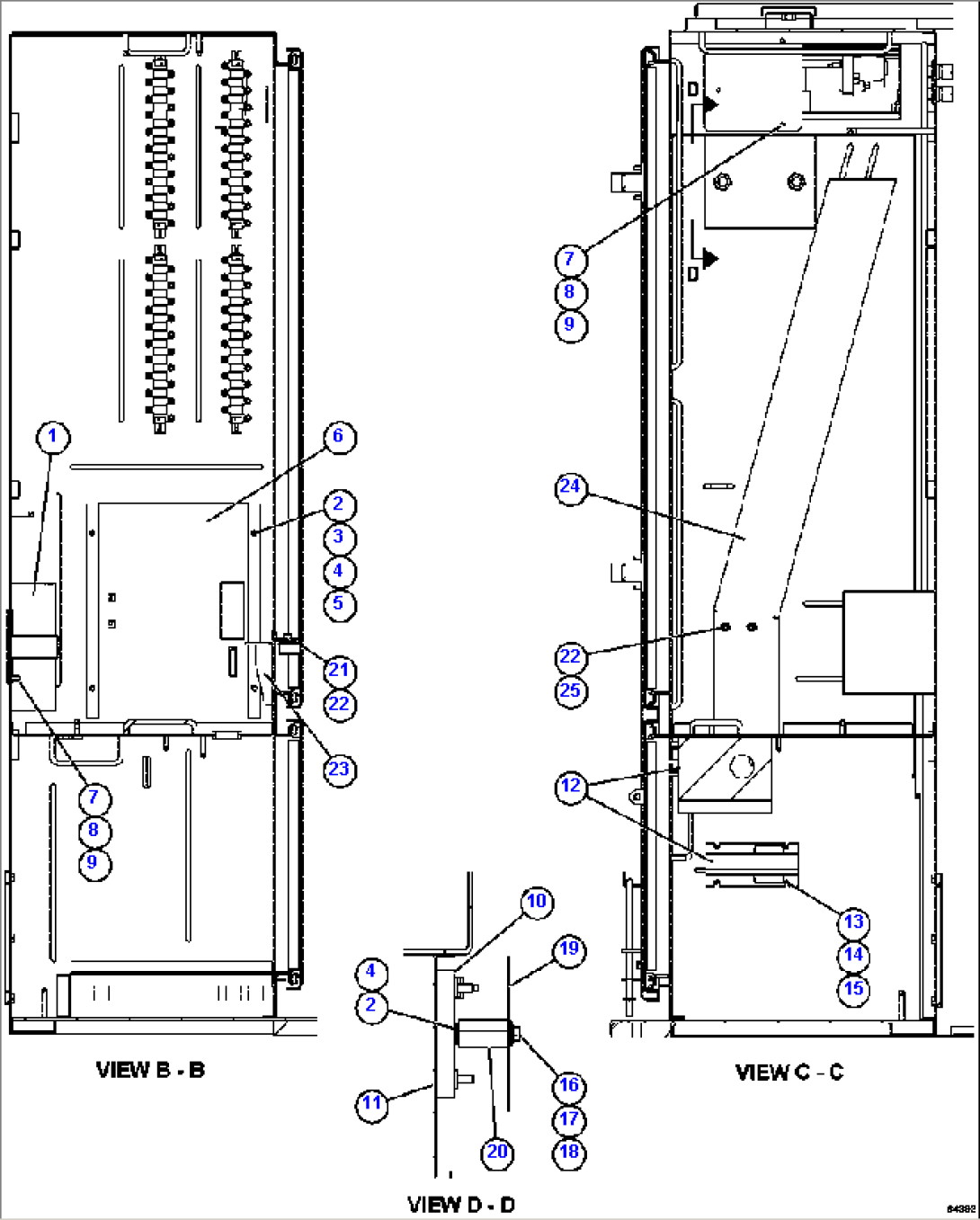
| Item | Part No. | Part Name | Qty | Serial No. |
| 1 | GE0865 | CAPACITOR SUB-ASSEMBLY | ||
| 1 | GE0514 | CAPACITOR | ||
| 1 | GE1175 | CLAMP | ||
| 1 | GE1176 | SUPPORT | ||
| 2 | VE4343 | FLAT WASHER - 5/16" | ||
| 3 | GE1383 | FLAT WASHER - 11/16" | ||
| 4 | VE4696 | LOCKWASHER - 5/16" | ||
| 5 | VE5013 | NUT - 5/16" - 18NC | ||
| 6 | GE0755 | POWER SUPPLY | ||
| 7 | XA4233 | FLAT WASHER - 1/4" | ||
| 8 | XA5003 | LOCKWASHER - 1/4" | ||
| 9 | VE4902 | NUT - 1/4" - 20NC | ||
| 10 | GE0231 | PANEL, FUSE | ||
| 10 | XA4571 | FUSE LIMITER (50 AMP) | ||
| 11 | BF3908 | SHIELD | ||
| 12 | GE0170 | SENSOR, AC-DC | ||
| 13 | VE4655 | FLAT WASHER - #10 | ||
| 14 | VE4601 | LOCKWASHER - #10 | ||
| 15 | VE4602 | NUT - #10 - 32NF | ||
| 16 | XA5272 | CAPSCREW - 3/8" - 16NC X 5/8" | ||
| 17 | VE4687 | LOCKWASHER - 3/8" | ||
| 18 | VE4515 | FLAT WASHER - 3/8" | ||
| 19 | XA3591 | SHIELD | ||
| 20 | PB3348 | INSULATOR | ||
| 21 | GE0831 | CAPSCREW - 3/8" - 16NC X 3/8" | ||
| 22 | XA2784 | WASHER | ||
| 23 | 58B-43-00360 | DOOR PROP ASSEMBLY | ||
| 24 | 58B-43-00350 | SHIELD, HV CABLE | ||
| 25 | 58B-43-00280 | LOCKNUT - 3/8" - 16NC |
