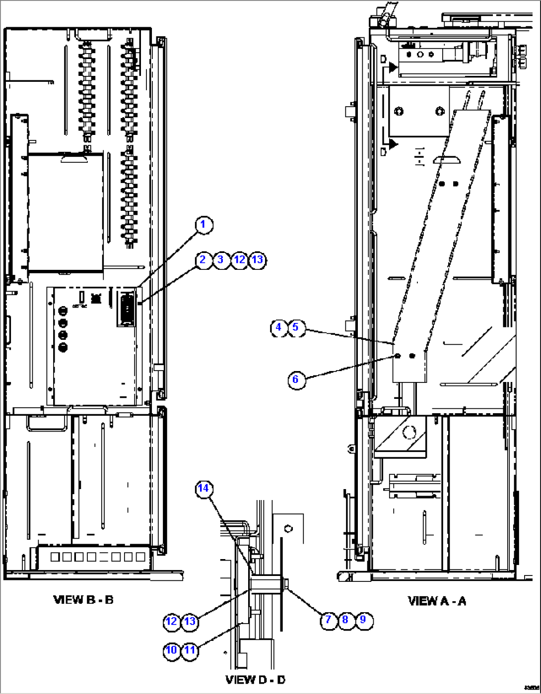
| Item | Part No. | Part Name | Qty | Serial No. |
| 1 | 58E-43-00101 | POWER SUPPLY | ||
| 2 | GE1383 | FLAT WASHER - 11/16" | ||
| 3 | VE5013 | NUT - 5/16" - 18NC | ||
| 4 | VE4700 | NUT - 3/8" - 16NC | ||
| 5 | 58B-43-00350 | SHIELD, HV CABLE | ||
| 6 | 58B-43-00280 | LOCKNUT - 3/8" - 16NC | ||
| 7 | XA5272 | CAPSCREW - 3/8" - 16NC X 5/8" | ||
| 8 | VE4687 | LOCKWASHER - 3/8" | ||
| 9 | VE4515 | FLAT WASHER - 3/8" | ||
| 10 | GE0231 | PANEL, FUSE | ||
| 10 | XA4571 | FUSE LIMITER (50 AMP) | ||
| 11 | BF3908 | SHIELD | ||
| 12 | VE4343 | FLAT WASHER - 5/16" | ||
| 13 | VE4696 | LOCKWASHER - 5/16" | ||
| 14 | PB3348 | INSULATOR |
