
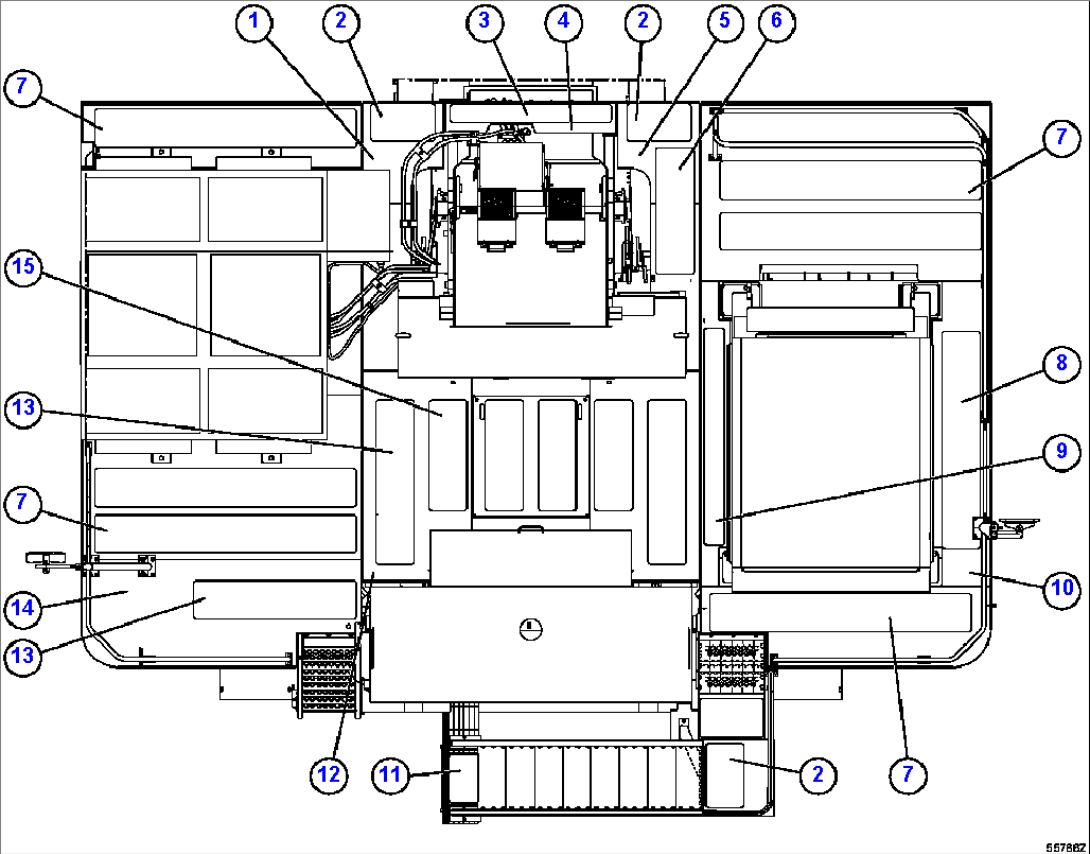
| Item | Part No. | Part Name | Qty | Serial No. |
| 1 | EM2483 | DECK, REAR CENTER - RH | ||
| 2 | TY9258 | STRIP, ANTI-SLIP | ||
| 3 | EC7579 | STRIP, ANTI-SLIP | ||
| 4 | EB9388 | DECK, REAR CENTER | ||
| 5 | XB3685 | DECK, REAR CENTER - LH | ||
| 6 | TN8305 | STRIP, ANTI-SLIP | ||
| 7 | TY9255 | STRIP, ANTI-SLIP | ||
| 8 | TY9256 | STRIP, ANTI-SLIP | ||
| 9 | EC1734 | STRIP, ANTI-SLIP | ||
| 10 | XB3690 | DECK - LH | ||
| 11 | EL8866 | STRIP, ANTI-SLIP | ||
| 12 | EL9900 | DECK, CENTER | ||
| 13 | EL8865 | STRIP, ANTI-SLIP | ||
| 14 | XB2320 | DECK - RH | ||
| 15 | EL8854 | STRIP, ANTI-SLIP |
