
| Item | Part No. | Part Name | Qty | Serial No. |
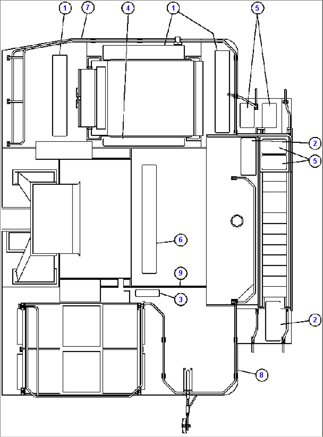
| 1 | TY9256 | STRIP, ANTI-SLIP | ||
| 2 | EC1733 | STRIP, ANTI-SLIP | ||
| 3 | EC6799 | STRIP, ANTI-SLIP | ||
| 4 | EC1734 | STRIP, ANTI-SLIP | ||
| 5 | TY9258 | STRIP, ANTI-SLIP | ||
| 6 | TY9254 | STRIP, ANTI-SLIP | ||
| 7 | EJ8762 | DECK - L.H. | ||
| 7 | MM0128 | CAPSCREW - M20 X 2.50 X 110 | ||
| 7 | EC7594 | FLAT WASHER (HARDENED) | ||
| 7 | EG9144 | SPACER | ||
| 7 | MM0697 | LOCKNUT - M20 X 2.50 | ||
| 8 | EJ6649 | DECK - R.H. | ||
| 8 | MM0091 | CAPSCREW - M20 X 2.50 X 80 (REAR) | ||
| 8 | EC7594 | FLAT WASHER (HARDENED) | ||
| 8 | MM0085 | CAPSCREW - M20 X 2.50 X 70 (FRONT) | ||
| 8 | MM0697 | LOCKNUT - M20 X 2.50 | ||
| 9 | EJ7651 | DECK, CENTER | ||
| 9 | MM0075 | CAPSCREW - M20 X 2.50 X 60 | ||
| 9 | MM0475 | LOCKWASHER - M20 | ||
| 9 | MM0182 | NUT - M20 X 2.50 | ||
| 9 | MM0465 | FLAT WASHER - M20 |
