
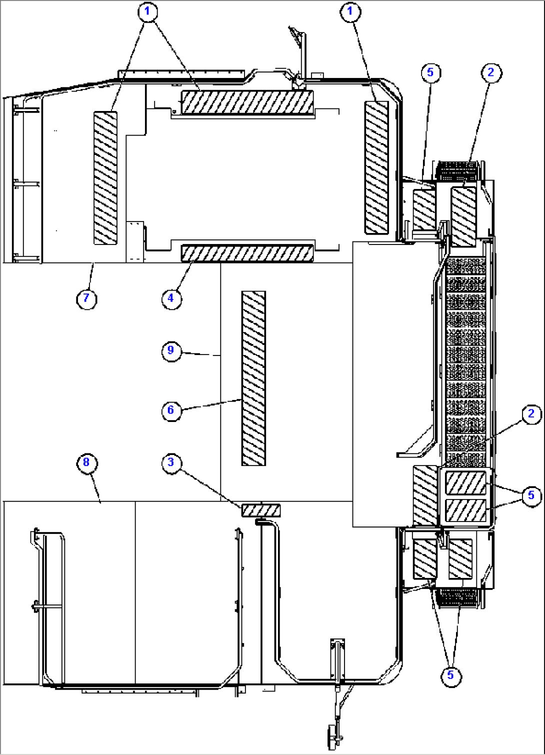
| Item | Part No. | Part Name | Qty | Serial No. |
| 1 | TY9256 | STRIP, ANTI-SLIP | ||
| 2 | EC1733 | STRIP, ANTI-SLIP | ||
| 3 | EC6799 | STRIP, ANTI-SLIP | ||
| 4 | EC1734 | STRIP, ANTI-SLIP | ||
| 5 | TY9258 | STRIP, ANTI-SLIP | ||
| 6 | TY9254 | STRIP, ANTI-SLIP | ||
| 7 | EM4414 | DECK - L.H. | ||
| 8 | EM1755 | DECK - R.H. | ||
| 9 | EJ7651 | DECK, CENTER |
