
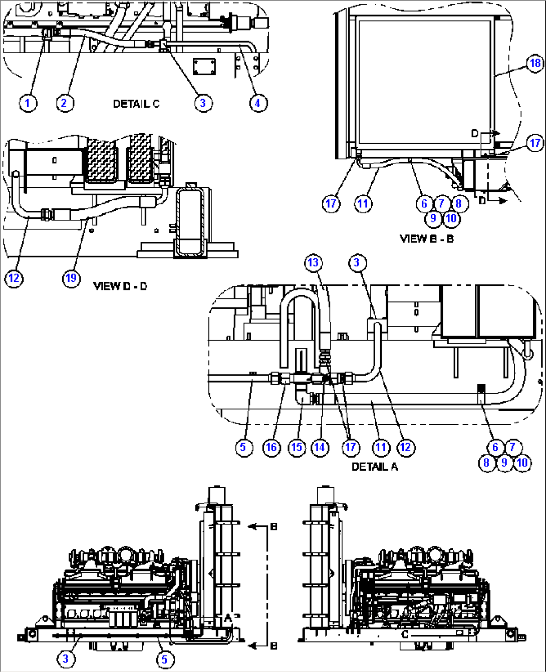
| Item | Part No. | Part Name | Qty | Serial No. |
| 1 | FITTING (SUPPLIED W/ ENGINE) | |||
| 2 | HA7624 | HOSE | ||
| 3 | WA4708 | CLAMP, HYDRA-ZORB - 1" | ||
| 4 | EK9064 | TUBE | ||
| 5 | EH4064 | TUBE | ||
| 6 | TC6058 | CLAMP, VINYL - 1 1/2" I.D. | ||
| 7 | VH9969 | STUD, WELD - 3/8" - 16NC X 3/4" | ||
| 8 | C1547 | FLAT WASHER - 3/8" | ||
| 9 | C0312 | LOCKWASHER - 3/8" | ||
| 10 | C1521 | NUT - 3/8" - 16NC | ||
| 11 | HA4108 | HOSE | ||
| 12 | EH4054 | TUBE | ||
| 13 | HA5273 | HOSE | ||
| 14 | PC0315 | VALVE, DIVERTER | ||
| 15 | WB0274 | FITTING, ELBOW - 90 DEG | ||
| 16 | WB0493 | FITTING, STRAIGHT | ||
| 17 | WB0474 | FITTING, STRAIGHT | ||
| 18 | XA2832 | COOLER, FUEL (SUPPLIED W/ RADIATOR) (SEE FIG 41833) | ||
| 19 | HA4803 | HOSE |
