
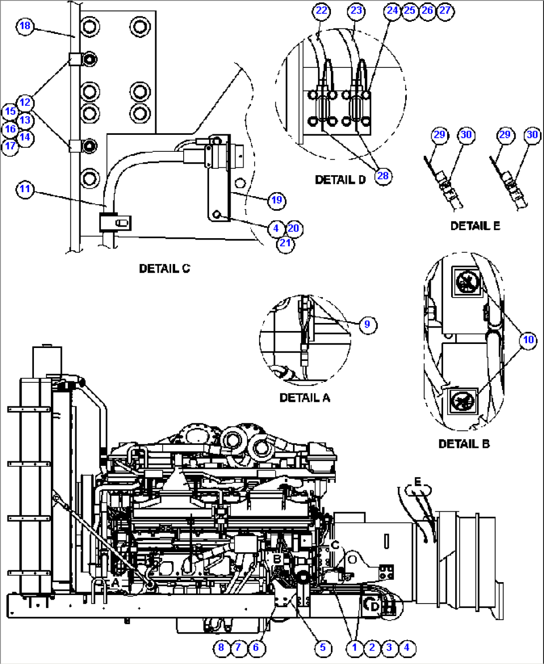
| Item | Part No. | Part Name | Qty | Serial No. |
| 1 | EJ3891 | CLAMP ASSEMBLY | ||
| 2 | EJ3892 | ROD, THREADED | ||
| 3 | MM0176 | NUT, HEX - M6 X 1 | ||
| 4 | MM0459 | FLAT WASHER - M6 | ||
| 5 | EK7164 | PLATE | ||
| 6 | MM0618 | CAPSCREW - M12 X 1.75 X 30 (ZINC) | ||
| 7 | MM0714 | FLAT WASHER - M12 (HARDENED) (ZINC) | ||
| 8 | MM0472 | LOCKWASHER - M12 | ||
| 9 | EG0655 | HARNESS, A/C COMPRESSOR JUMPER | ||
| 10 | 09842A0481 | PLATE SAFTEY JUMP START ENG | ||
| 11 | EL4305 | HARNESS, ENGINE (EXTERNAL) | ||
| 12 | 443453211 | CLIP | ||
| 13 | VH9969 | STUD, WELD - 3/8" - 16NC X 3/4" | ||
| 14 | C1547 | FLAT WASHER - 3/8" (PLAIN) | ||
| 15 | 709530523 | CUSHION HOSE | ||
| 16 | C1521 | NUT - 3/8" - 16NC | ||
| 17 | C0312 | LOCKWASHER - 3/8" | ||
| 18 | HA3083 | HOSE | ||
| 19 | EG6272 | SHEET, BENT | ||
| 20 | MM0025 | CAPSCREW - M6 X 1 X 20 | ||
| 21 | MM0469 | LOCKWASHER - M6 | ||
| 22 | EK7166 | RECEPTACLE | ||
| 23 | EK7677 | RECEPTACLE | ||
| 24 | VC8762 | CAPSCREW - 3/8" - 16NC X 1 1/2" (G5) (ZINC) | ||
| 25 | HE5611 | LOCKNUT - 3/8" - 16NC | ||
| 26 | TR4436 | FLAT WASHER - 3/8" | ||
| 27 | TC1231 | LOCKWASHER - 3/8" | ||
| 28 | PB9533 | COVER, ASSEMBLY | ||
| 29 | PB5633 | TERMINAL RING | ||
| 30 | VM3666 | TAG PART NUMBER |
