
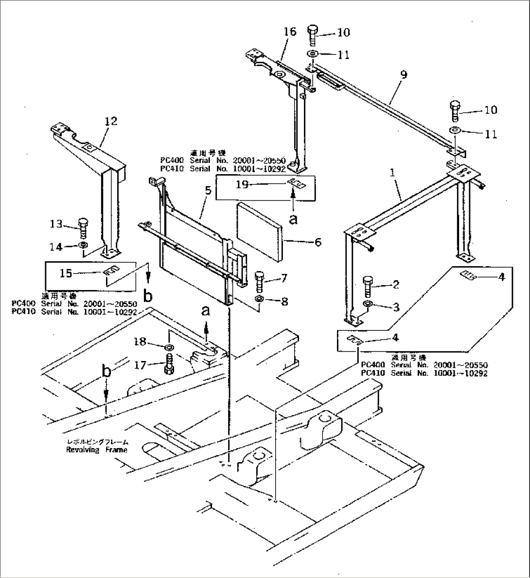
| Item | Part No. | Part Name | Qty | Serial No. |
| 1 | 208-54-51153 | FRAME | 20001- | |
| 2 | 01010-51240 | BOLT | 20001- | |
| 3 | 01643-31232 | WASHER | 20001- | |
| 4 | 207-54-52560 | PLATE | 20001-20550 | |
| 5 | 208-54-51710 | FRAME | 20001- | |
| 6 | 207-54-51530 | SHEET | 20001- | |
| 7 | 01010-51240 | BOLT | 20001- | |
| 8 | 01643-31232 | WASHER | 20001- | |
| 9 | 208-54-51192 | FRAME | 20001- | |
| 10 | 01010-51240 | BOLT | 20001- | |
| 11 | 175-54-34170 | WASHER | 20001- | |
| 12 | 208-54-51771 | FRAME | 20001- | |
| 13 | 01010-51230 | BOLT | 20001- | |
| 14 | 01643-31232 | WASHER | 20001- | |
| 15 | 207-54-52560 | PLATE | 20001-20550 | |
| 16 | 208-54-51781 | FRAME | 20001- | |
| 17 | 01010-51240 | BOLT | 20001- | |
| 18 | 01643-31232 | WASHER | 20001- | |
| 19 | 207-54-52560 | PLATE | 20001-20550 |
