
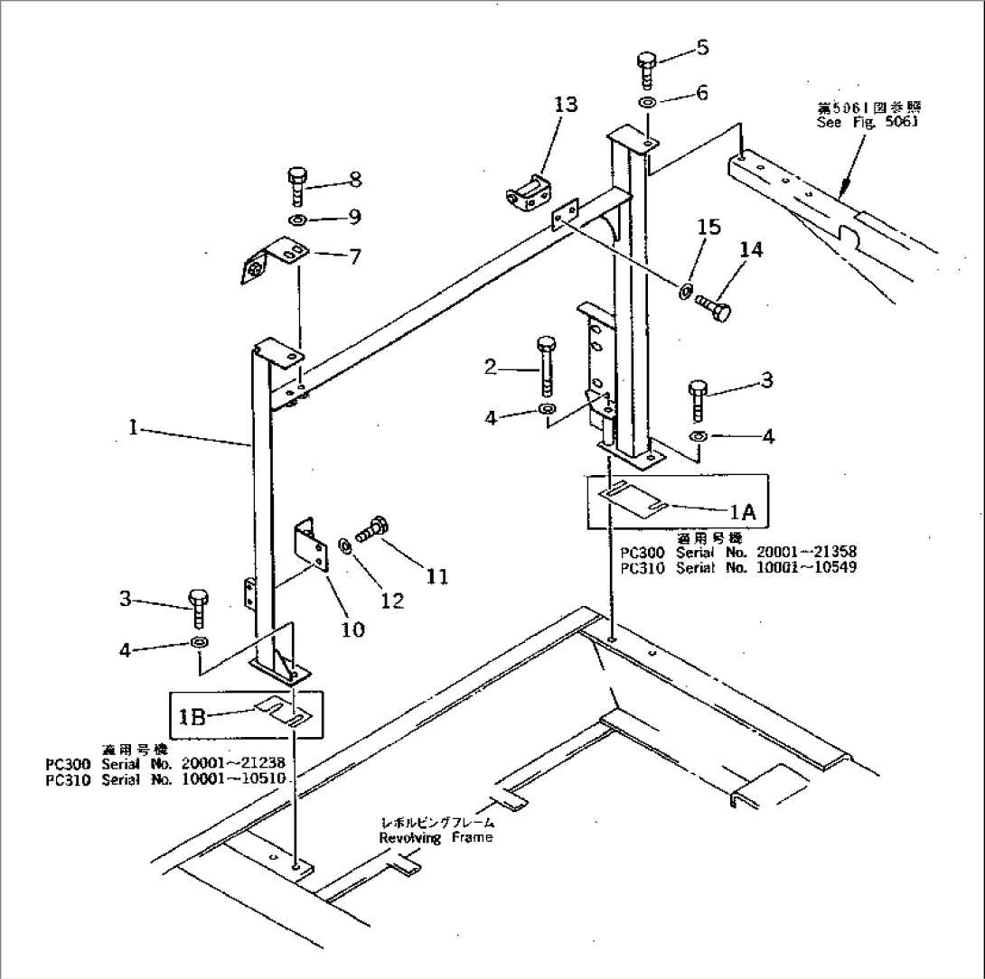
Item | Part No. | Part Name | Qty | Serial No. |
1 | 207-54-51721 | FRAME,R.H. | 20001- | |
1A | 207-54-52550 | PLATE | 20001-21358 | |
1B | 207-54-52560 | PLATE | 20001-21238 | |
2 | 01011-51230 | BOLT | 20001- | |
3 | 01010-51240 | BOLT | 20001- | |
4 | 01643-31232 | WASHER | 20001- | |
5 | 01010-51230 | BOLT | 20001- | |
6 | 01643-31232 | WASHER | 20001- | |
7 | 207-54-51560 | PLATE | 20001- | |
8 | 01010-51230 | BOLT | 20544- | |
8 | 01010-51235 | BOLT | 20001-20543 | |
9 | 01643-31232 | WASHER | 20001- | |
10 | 207-54-51570 | PLATE | 20001- | |
11 | 01010-51230 | BOLT | 20001- | |
12 | 01643-31232 | WASHER | 20001- | |
13 | 207-54-31870 | BRACKET | 20001- | |
14 | 01010-51025 | BOLT | 20544- | |
14 | 01010-51020 | BOLT | 20001-20543 | |
15 | 01643-31032 | WASHER | 20001- |