
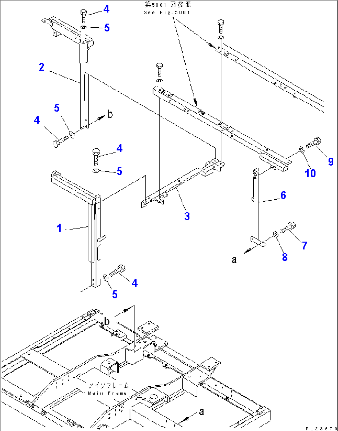
| Item | Part No. | Part Name | Qty | Serial No. |
| 1 | 20Y-54-19670 | FRAME | 1002- | |
| 2 | 8221-54-1140 | FRAME | 1002- | |
| 3 | 20Y-54-12431 | FRAME | 1002- | |
| 4 | 01010-51230 | BOLT | 1002- | |
| 5 | 01643-31232 | WASHER | 1002- | |
| 6 | 20Y-54-12910 | FRAME | 1002- | |
| 7 | 01010-51225 | BOLT | 1002- | |
| 8 | 01643-31232 | WASHER | 1002- | |
| 9 | 01010-51230 | BOLT | 1002- | |
| 10 | 01643-31232 | WASHER | 1002- |
