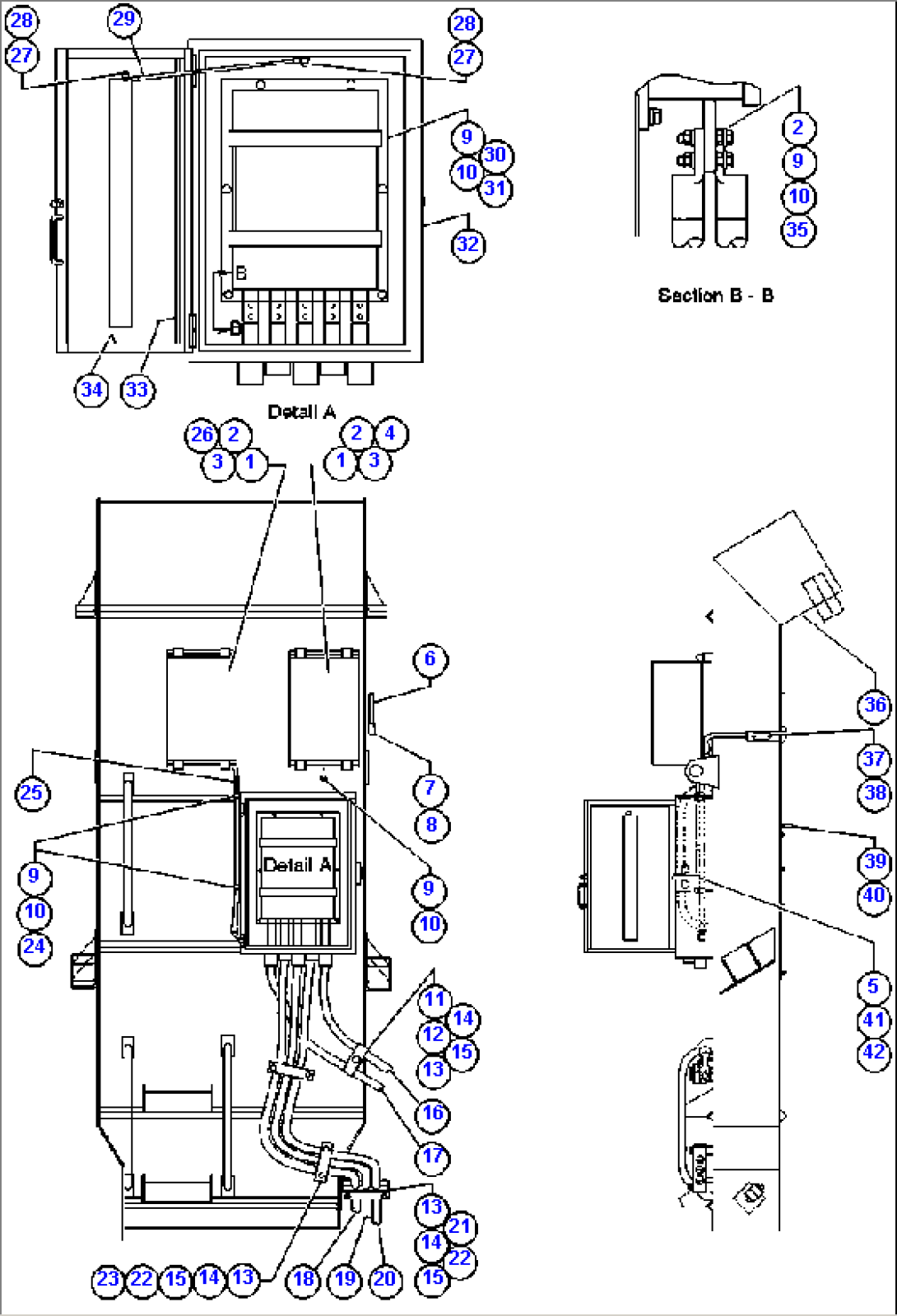
| Item | Part No. | Part Name | Qty | Serial No. |
| 1 | TC1233 | NUT - 3/8" - 16NC | | |
| 2 | TR4436 | FLAT WASHER - 3/8" | | |
| 3 | TC1231 | LOCKWASHER - 3/8" | | |
| 4 | PB5508 | PANEL, RESISTOR (SEE INDEX) | | |
| 5 | VS7026 | LATCH, COVER | | |
| 6 | EC9217 | HARNESS | | |
| 7 | TD1548 | CAPSCREW - 1/4" - 20NC X 5/8" | | |
| 8 | DC3584 | LOCKWASHER - 1/4" | | |
| 9 | TC1231 | LOCKWASHER - 3/8" | | |
| 10 | TC1233 | NUT - 3/8" - 16NC | | |
| 11 | ED8937 | CLEAT, CABLE | | |
| 12 | VP3769 | STUD - 5/8" - 11NC | | |
| 13 | TR9082 | FLAT WASHER - 5/8" | | |
| 14 | VC1390 | LOCKWASHER - 5/8" | | |
| 15 | TV1749 | NUT - 5/8" - 11NC | | |
| 16 | CH3901 | CABLE - 7GA2 (RECTIFIER TO P1 CONTACTOR) | | |
| 17 | CH3902 | CABLE - 7GA1 | | |
| 18 | CH2161 | CABLE - T1 | | |
| 19 | CH2162 | CABLE - T2 | | |
| 20 | CH2163 | CABLE - T3 | | |
| 21 | WA4689 | CAPSCREW - 5/8" - 11NC X 3 1/2" | | |
| 22 | ED8940 | CLAMP | | |
| 23 | VN6187 | STUD | | |
| 24 | TG2568 | CLAMP | | |
| 25 | EC7734 | CABLE - (RECTIFIER TO FILTER PANEL) | | |
| 26 | PB5066 | PANEL, FILTER (SEE INDEX) | | |
| 27 | MM0459 | FLAT WASHER - M6 | | |
| 28 | MM0691 | LOCKNUT - M6 X 1.00 | | |
| 29 | PB9514 | WIRE ROPE | | |
| 30 | WA0720 | FLAT WASHER - 3/8" (HARDENED) | | |
| 31 | PB6489 | RECTIFIER (SEE INDEX) | | |
| 32 | PB7929 | PLUG, DOME | | |
| 33 | TY0554 | SEAL, STRIP | | |
| 34 | TY0553 | SEAL, STRIP | | |
| 35 | TD0789 | CAPSCREW - 3/8" - 16NC X 1 3/4" | | |
| 36 | EK3722 | DUCT, INLET | | |
| 37 | VM5729 | GASKET, CONDULET | | |
| 38 | VM3745 | COVER, CONDULET | | |
| 39 | TY3398 | COVER | | |
| 40 | WA1738 | LOCKSCREW - 3/8" - 16NC X 1" | | |
| 41 | DC3101 | LOCKWASHER - #10 | | |
| 42 | VF2231 | MACHINE SCREW - #10 - 24NC X 3/8" | | |