
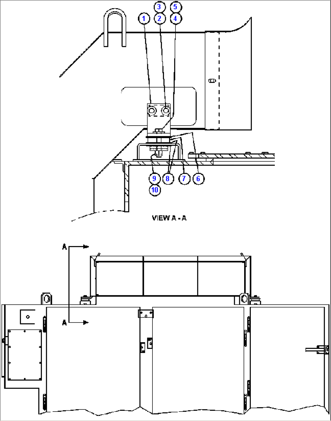
| Item | Part No. | Part Name | Qty | Serial No. |
| 1 | EK7043 | PLATE, BENT | ||
| 2 | MM0606 | CAPSCREW - M10 X 1.50 X 30 | ||
| 3 | WA4727 | FLAT WASHER - 7/16" (HARDENED) | ||
| 4 | C1636 | CAPSCREW - 5/8" - 11NC X 3 1/2" | ||
| 5 | WA4729 | FLAT WASHER - 5/8" (HARDENED) | ||
| 6 | EK7045 | WASHER (SPECIAL) | ||
| 7 | WA2591 | MOUNT, RUBBER | ||
| 8 | EK7044 | WASHER (SPECIAL) | ||
| 9 | WA4719 | FLAT WASHER (SPECIAL) | ||
| 10 | TG9226 | LOCKNUT - 5/8" - 11NC |
