
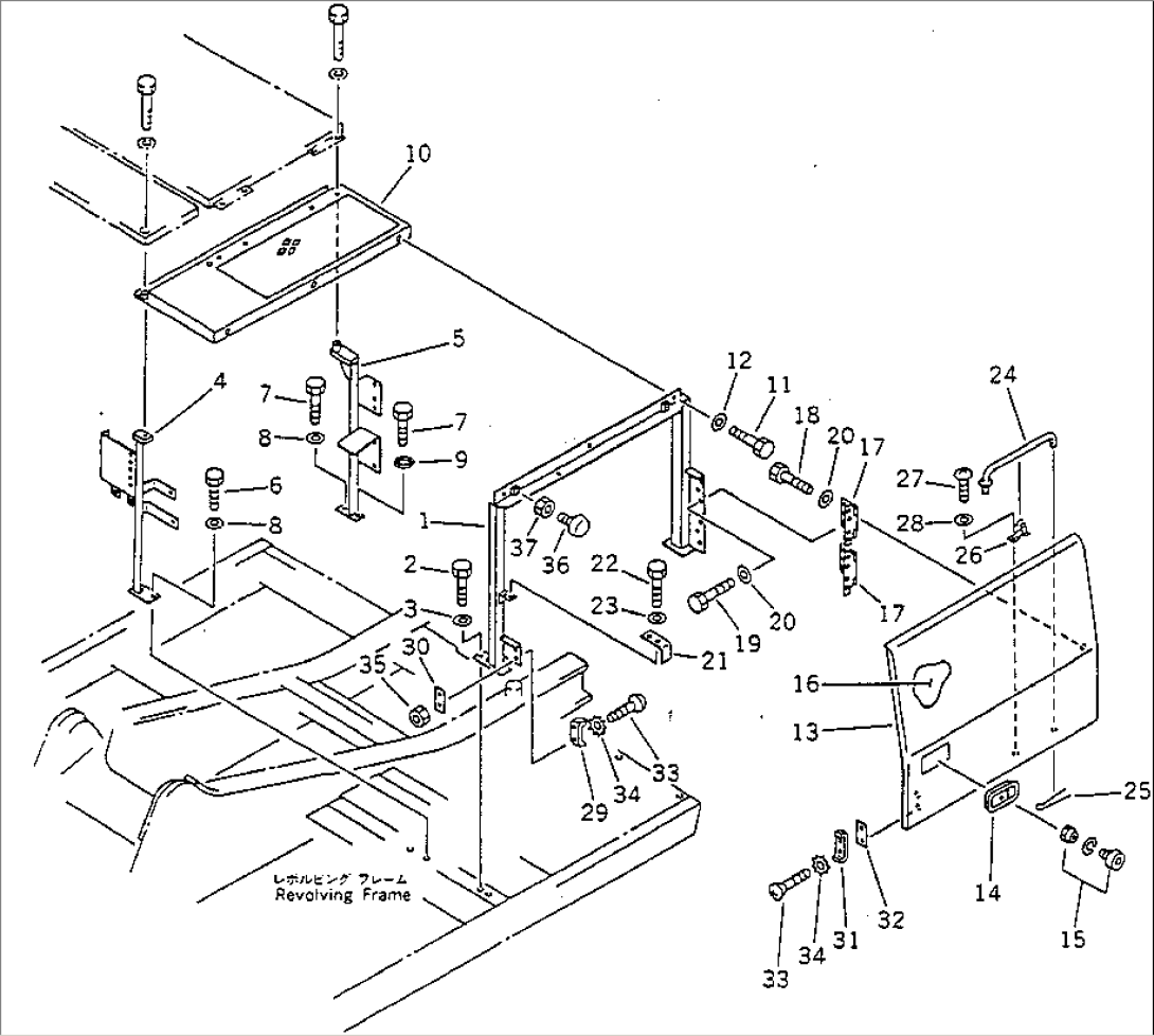
| Item | Part No. | Part Name | Qty | Serial No. | 
| 1 | 203-54-52345 | BRACKET | 14042-14143 | |
| 203-54-56381 | BRACKET,(WITH SWING FLASHER) | 14042-14143 | ||
| 2 | 01010-51030 | BOLT | 14001-@ | |
| 3 | 01643-31032 | WASHER | 14001-@ | |
| 4 | 203-54-52174 | BRACKET | 14001-@ | |
| 5 | 203-54-56760 | BRACKET | 14001-14143 | |
| 6 | 01010-51025 | BOLT | 14001-@ | |
| 7 | 01010-51030 | BOLT | 14001-@ | |
| 8 | 01643-31032 | WASHER | 14001-@ | |
| 9 | 01605-11023 | WASHER | 14042-@ | |
| 10 | 203-54-52372 | COVER | 14001-@ | |
| 11 | 01010-51025 | BOLT | 14001-@ | |
| 12 | 01643-31032 | WASHER | 14001-@ | |
| 13 | 203-54-52521 | COVER ASS'Y | 14042-@ | |
| 14 | 421-54-11372 | LOCK ASS'Y (WELDED) | 14001-@ | |
| 15 | 421-54-11381 | LOCK | 14001-@ | |
| 16 | 203-54-52492 | SHEET | 14042-@ | |
| 17 | 203-54-52412 | HINGE | 14042-@ | |
| 18 | 01010-51025 | BOLT | 14042-@ | |
| 19 | 01010-51030 | BOLT | 14042-@ | |
| 20 | 01643-31032 | WASHER | 14042-@ | |
| 21 | 203-54-52620 | PLATE | 14001-@ | |
| 22 | 01010-51025 | BOLT | 14001-@ | |
| 23 | 01643-31032 | WASHER | 14001-@ | |
| 24 | 203-54-52631 | BAR | 14001-@ | |
| 25 | 04050-13018 | PIN,COTTER | 14001-@ | |
| 26 | 20B-54-12210 | SPRING | 14001-@ | |
| 27 | 01220-40406 | SCREW | 14001-@ | |
| 28 | 01641-20405 | WASHER | 14001-@ | |
| 29 | 566-54-13410 | STRIKER | 14042-@ | |
| 30 | 203-54-56790 | PLATE | 14042-@ | |
| 31 | 566-54-14420 | STOPPER | 14042-@ | |
| 32 | 203-54-52610 | PLATE | 14042-@ | |
| 33 | 01225-40820 | SCREW | 14042-@ | |
| 34 | 566-54-13570 | WASHER | 14042-@ | |
| 35 | 01580-00806 | NUT | 14042-@ | |
| 36 | 203-54-56710 | STOPPER | 14042-@ | |
| 37 | 01580-11008 | NUT | 14042-@ | 
