
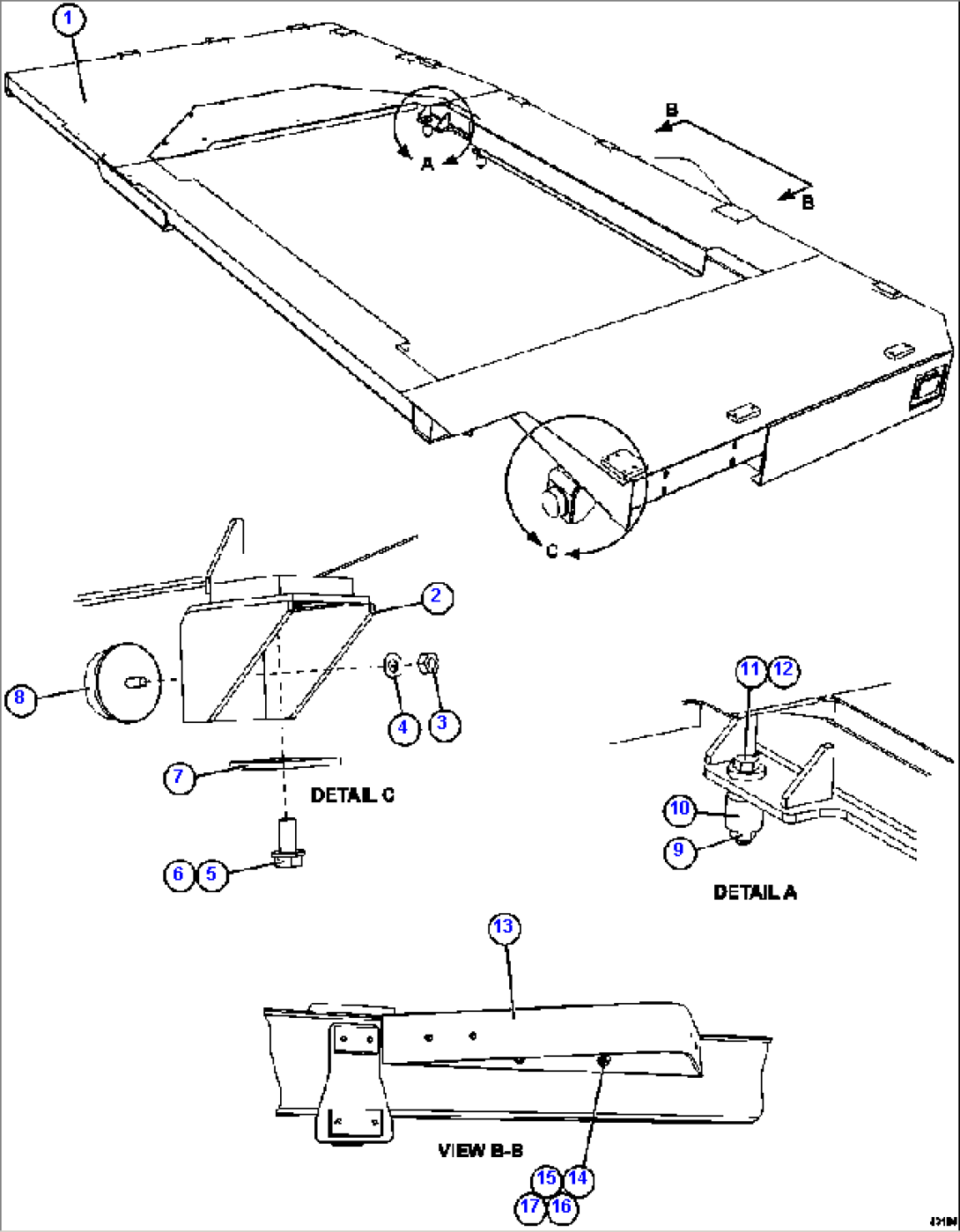
| Item | Part No. | Part Name | Qty | Serial No. |
| 1 | 58E-54-04770 | DECK, LH | ||
| 2 | EJ2443 | BRACKET | ||
| 3 | TR6643 | NUT - 1/2" - 13NC | ||
| 4 | VN9780 | FLAT WASHER - 9/16" | ||
| 5 | MM0031 | CAPSCREW - M20 X 2.50 X 45 | ||
| 6 | MM0707 | FLAT WASHER - M20 | ||
| 7 | EC7589 | PLATE | ||
| 8 | D104556 | BUMPER, RADIATOR STABILIZER | ||
| 9 | MM0697 | LOCKNUT - M20 X 2.50 | ||
| 10 | EG9144 | SPACER | ||
| 11 | MM0128 | CAPSCREW - M20 X 2.50 X 110 | ||
| 12 | EC7594 | FLAT WASHER - 3/4" | ||
| 13 | XB4729 | EXTENSION, DECK | ||
| 14 | MM0627 | CAPSCREW - M12 X 1.75 X 100 | ||
| 15 | MM0472 | LOCKWASHER - M12 | ||
| 16 | MM0462 | FLAT WASHER - M12 | ||
| 17 | MM0179 | NUT - M12 X 1.75 |
