
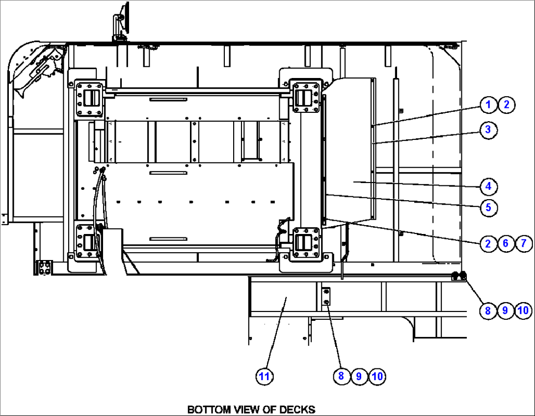
| Item | Part No. | Part Name | Qty | Serial No. |
| 1 | MM0047 | LOCKWASHER - M10 | ||
| 2 | MM0704 | FLAT WASHER - M10 (HARDENED) | ||
| 3 | EJ6527 | BAR | ||
| 4 | EJ6526 | COVER | ||
| 5 | EH7975 | BAR | ||
| 6 | MM0050 | CAPSCREW - M10 X 1.50 X 25 | ||
| 7 | MM0178 | NUT - M10 X 1.50 | ||
| 8 | MM0075 | CAPSCREW - M20 X 2.50 X 60 | ||
| 9 | MM0697 | LOCKNUT - M20 X 2.50 | ||
| 10 | EC7594 | FLAT WASHER - M20 (HARDENED) | ||
| 11 | EC1826 | DECK, REAR CENTER - L.H. |
