
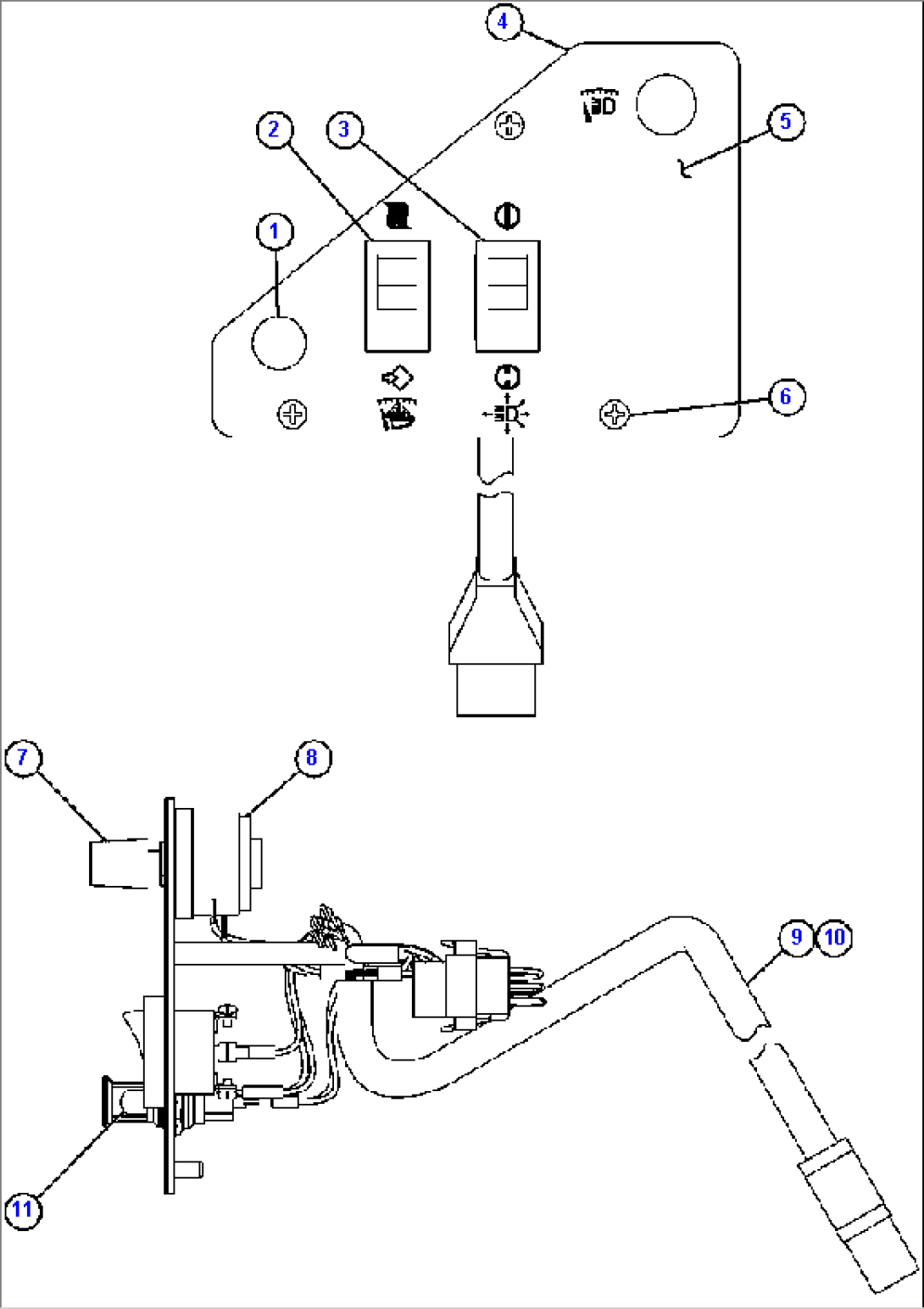
| Item | Part No. | Part Name | Qty | Serial No. |
| 1 | PB7019 | LIGHT, INDICATOR | ||
| 2 | PB8639 | SWITCH, ROCKER (PAYLOAD METER) | ||
| 3 | PB7026 | SWITCH, ROCKER (HEADLIGHTS) | ||
| 4 | SM4357 | PLATE, MOUNTING | ||
| 5 | EL2676 | OVERLAY, LEXAN | ||
| 6 | SM0926 | SCREW, PAN - M6 X 1.00 | ||
| 7 | PB0529 | KNOB (PANEL DIMMER) | ||
| 8 | TW5117 | RHEOSTAT (PANEL DIMMER) | ||
| 9 | VH5017 | TYRAP | ||
| 10 | EG4129 | HARNESS, LOWER L.H. DASH | ||
| 11 | VL6234 | BULB | ||
| 11 | (NOT SERVICED AS AN ASSEMBLY. | |||
| 11 | ORDER INDIVIDUAL COMPONENT PARTS.) |
