
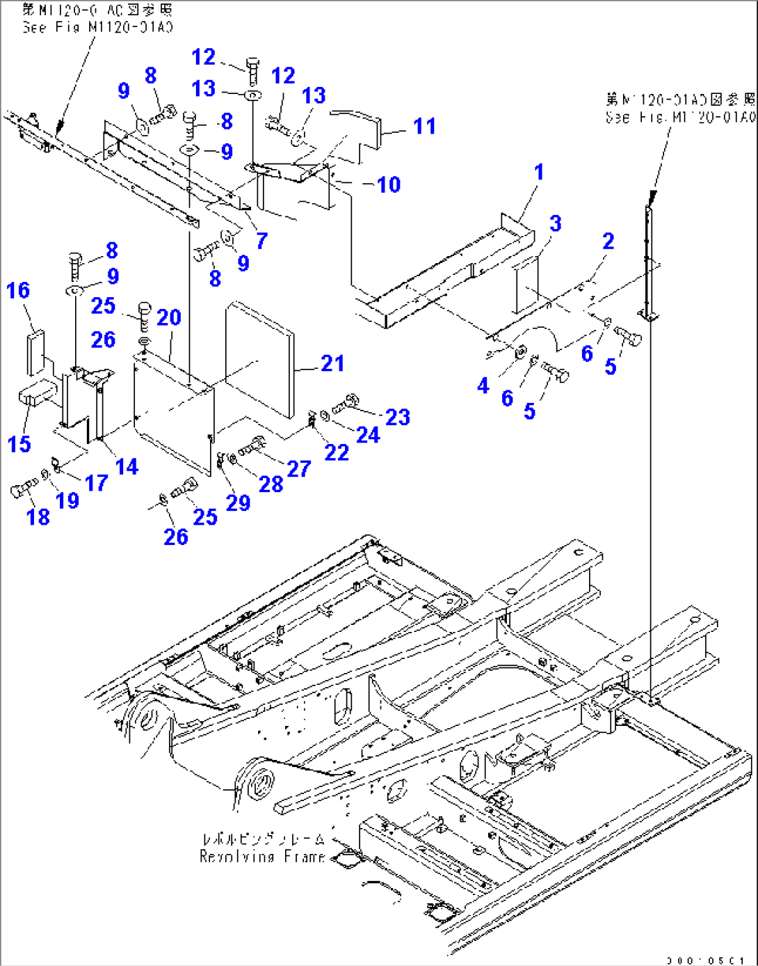
| Item | Part No. | Part Name | Qty | Serial No. |
| 1 | 208-54-71711 | COVER | 50001- | |
| 208-54-72820 | COVER | 50001- | ||
| 2 | \6\ | COVER | 50001- | |
| 3 | 208-54-73410 | SHEET | 50001- | |
| 4 | 203-54-62670 | COLLAR | 50001- | |
| 5 | 01010-81230 | BOLT | 50001- | |
| 6 | 01643-31232 | WASHER | 50001- | |
| 7 | 208-54-71732 | COVER | 50001- | |
| 8 | 01010-81230 | BOLT | 50001- | |
| 9 | 175-54-34170 | WASHER | 50001- | |
| 208-54-72850 | COVER | 50001- | ||
| 10 | 208-54-71751 | COVER | 50001- | |
| 11 | 208-54-73440 | SHEET | 50001- | |
| 12 | 01010-81230 | BOLT | 50001- | |
| 13 | 175-54-34170 | WASHER | 50001- | |
| 14 | 208-54-71661 | COVER | 50001- | |
| 15 | 208-54-73391 | SHEET | 50001- | |
| 16 | 208-54-73461 | SHEET | 50001- | |
| 17 | 20Y-54-27761 | CATCH | 50001- | |
| 18 | 01010-81220 | BOLT | 50001- | |
| 19 | 01643-31232 | WASHER | 50001- | |
| 20 | 208-54-71761 | COVER | 50001- | |
| 21 | 208-54-73451 | SHEET | 50001- | |
| 22 | 20Y-54-27761 | CATCH | 50001- | |
| 23 | 01010-81220 | BOLT | 50001- | |
| 24 | 01643-31232 | WASHER | 50001- | |
| 25 | 01010-81220 | BOLT | 50001- | |
| 26 | 01643-31232 | WASHER | 50001- | |
| 27 | 01010-81230 | BOLT | 50001- | |
| 28 | 01643-31232 | WASHER | 50001- | |
| 29 | 20Y-54-27761 | CATCH | 50001- |
