
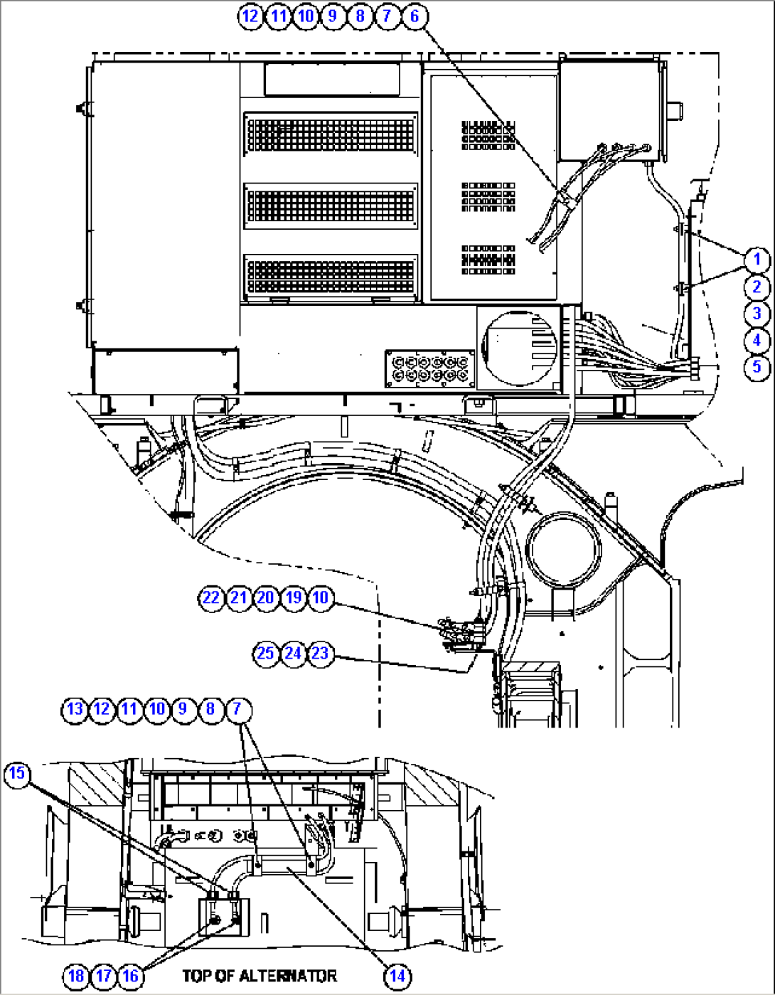
| Item | Part No. | Part Name | Qty | Serial No. |
| 1 | TG5845 | STUD, THREADED | ||
| 2 | VN5529 | CLEAT, CABLE | ||
| 3 | VC1390 | LOCKWASHER - 5/8" | ||
| 4 | TR9082 | FLAT WASHER - 5/8" | ||
| 5 | TV1749 | NUT - 5/8" - 11NC | ||
| 6 | EB9886 | STUD, THREADED | ||
| 7 | VA0609 | SPACER | ||
| 8 | ED8936 | CLEAT, CABLE | ||
| 9 | EH1785 | CLEAT, CABLE | ||
| 10 | MM0464 | FLAT WASHER - M16 | ||
| 11 | MM0474 | LOCKWASHER - M16 | ||
| 12 | MM0181 | NUT - M16 X 2.00 | ||
| 13 | EB9885 | STUD, THREADED | ||
| 14 | EK6397 | BRACKET | ||
| 15 | WB0983 | CORD GRIP | ||
| 16 | TR4436 | FLAT WASHER - 3/8" | ||
| 17 | TC1231 | LOCKWASHER - 3/8" | ||
| 18 | TC1233 | NUT - 3/8" - 16NC | ||
| 19 | EC1090 | STUD, THREADED - M16 X 2.00 | ||
| 20 | MM0696 | LOCKNUT - M16 X 2.00 | ||
| 21 | PC2155 | CLEAT, CABLE | ||
| 22 | EL6000 | RETAINER | ||
| 23 | EM4597 | BRACKET | ||
| 24 | VC1387 | CAPSCREW - 1/2" - 13NC X 1" | ||
| 25 | TR6008 | FLAT WASHER - 1/2" |
