
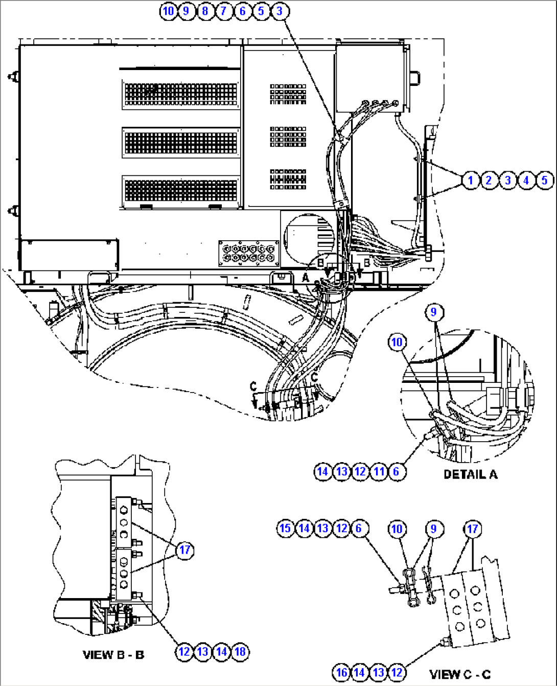
Item | Part No. | Part Name | Qty | Serial No. |
1 | TG5845 | STUD, THREADED | ||
2 | VN5529 | CLEAT, CABLE | ||
3 | VC1390 | LOCKWASHER - 5/8" | ||
4 | TR9082 | FLAT WASHER - 5/8" | ||
5 | TV1749 | NUT - 5/8" - 11NC | ||
6 | VA0609 | SPACER | ||
7 | WA4863 | FLAT WASHER - 5/8" | ||
8 | VN6187 | STUD | ||
9 | ED8936 | CLEAT, CABLE | ||
10 | TN2590 | SPACER, HOSE | ||
11 | EC1091 | STUD | ||
12 | MM0464 | FLAT WASHER - M16 | ||
13 | MM0474 | LOCKWASHER - M16 | ||
14 | MM0181 | NUT - M16 X 2.00 | ||
15 | EK4014 | STUD, THREADED - M16 X 2.00 | ||
16 | EC1090 | STUD, THREADED - M16 X 2.00 | ||
17 | EJ9742 | CLAMP, WOOD | ||
18 | EB9886 | STUD, THREADED |