
| Item | Part No. | Part Name | Qty | Serial No. |
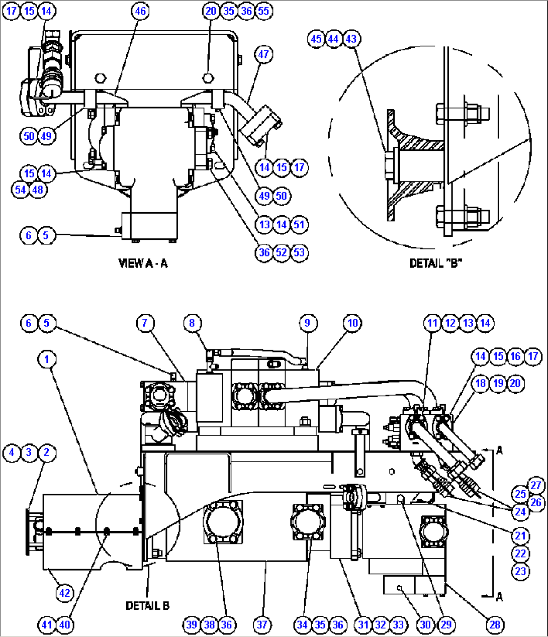
| 1 | EJ9748 | COVER, TOP | ||
| 2 | PC0183 | SHAFT, DRIVE (SEE FIG 41635) | ||
| 3 | VN9037 | CAPSCREW - 3/8" - 16NC X 1 1/4" | ||
| 4 | WA0386 | NUT - 3/8" - 16NC | ||
| 5 | PB6528 | COUPLING, DIAGNOSTIC | ||
| 6 | PB6041 | CAP, DUST | ||
| 7 | EK6183 | ADAPTER, FLANGE | ||
| 8 | WB0375 | FITTING, ELBOW - 90 DEG | ||
| 9 | WB0584 | FITTING, STRAIGHT | ||
| 10 | PB9839 | HOIST VALVE ASSEMBLY (SEE INDEX) | ||
| 11 | TF8090 | CLAMP, SPLIT FLANGE | ||
| 12 | VG9095 | O-RING | ||
| 13 | C1614 | CAPSCREW - 1/2" - 13NC X 1 1/2" | ||
| 14 | C1540 | LOCKWASHER - 1/2" | ||
| 15 | C1615 | CAPSCREW - 1/2" - 13NC X 1 3/4" | ||
| 16 | VG9096 | O-RING | ||
| 17 | WA5630 | CLAMP, FLANGE - 1 1/4" | ||
| 18 | PC0522 | VALVE, MANIFOLD OVERCENTER (SEE INDEX) | ||
| 19 | C7595 | CAPSCREW - 5/8" - 11NC X 1 1/4" | ||
| 20 | WA0361 | FLAT WASHER - 5/8" (HARDENED) | ||
| 21 | DC7524 | CAPSCREW - 3/8" - 16NC X 7/8" | ||
| 22 | C0312 | LOCKWASHER - 3/8" | ||
| 23 | WA0720 | FLAT WASHER - 3/8" (HARDENED) | ||
| 24 | TA2968 | PLUG, DUST | ||
| 25 | PB4685 | COUPLING, HYDRAULIC | ||
| 26 | WA3568 | FITTING, TUBE | ||
| 27 | WB0547 | FITTING, ELBOW - 45 DEG | ||
| 28 | PC1142 | STEERING PUMP ASSEMBLY (SEE INDEX) | ||
| 29 | WB0520 | FITTING, ELBOW - 90 DEG | ||
| 30 | WB0574 | FITTING, STRAIGHT | ||
| 31 | WA0098 | O-RING | ||
| 32 | VG9058 | RING, SEATING | ||
| 33 | C1621 | CAPSCREW - 1/2" - 13NC X 3 1/4" | ||
| 34 | VL9963 | CLAMP, SPLIT FLANGE | ||
| 35 | C1629 | CAPSCREW - 5/8" - 11NC X 1 3/4" | ||
| 36 | C1541 | LOCKWASHER - 5/8" | ||
| 37 | PB9008 | HOIST PUMP ASSEMBLY (SEE INDEX) | ||
| 38 | VN7716 | CLAMP, SPLIT FLANGE | ||
| 39 | C1630 | CAPSCREW - 5/8" - 11NC X 2" | ||
| 40 | TL7218 | CAPSCREW - 3/8" - 16NC X 7/8" | ||
| 41 | TC1231 | LOCKWASHER - 3/8" | ||
| 42 | EJ9749 | COVER, BOTTOM | ||
| 43 | PB7940 | FLANGE, COMPANION | ||
| 44 | EB3976 | WASHER (SPECIAL) | ||
| 45 | H0989 | JAM NUT - 1" - 14NF | ||
| 46 | EH8957 | BRACKET | ||
| 47 | EH8490 | TUBE | ||
| 48 | WA0232 | O-RING | ||
| 49 | ED6147 | ANGLE | ||
| 50 | WA4709 | CLAMP, HYDRA ZORB - 1 1/4" | ||
| 51 | TF3231 | CLAMP, SPLIT FLANGE | ||
| 52 | WA5629 | CLAMP, FLANGE - 1 1/2" | ||
| 53 | C1631 | CAPSCREW - 5/8" - 11NC X 2 1/4" | ||
| 54 | VH6718 | CLAMP, SPLIT FLANGE | ||
| 55 | VN9952 | LOCKNUT - 5/8" - 11NC |
