Ваш браузер устарел. Этот сайт может работать неполноценно или выглядеть сломанным. Обновите ваш браузер, если можете.

Поиск по каталогу

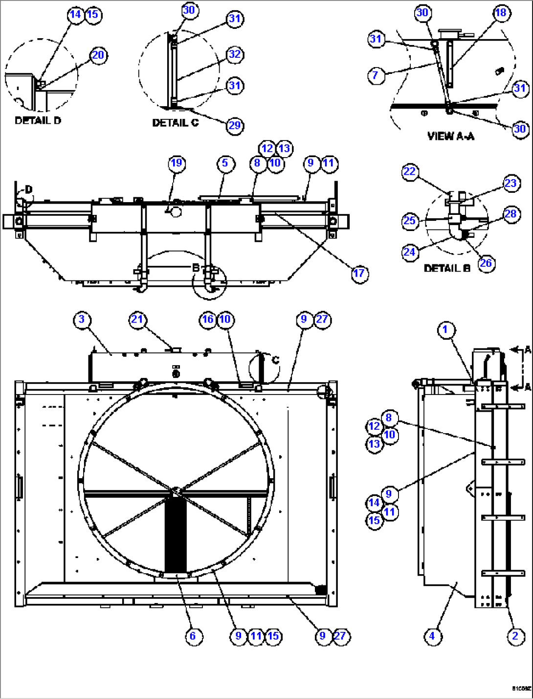
RADIATOR & SHROUD ASSEMBLY PC2069

RADIATOR & SHROUD ASSEMBLY PC2069
ItemPart No.Part NameQtySerial No.
1XA3518RADIATOR, JACKET WATER (HTC) (SEE FIG 61060)
2XA3519RADIATOR, AFTERCOOLER (LTC) (SEE FIG 61060)
3XA2081TANK, SURGE
4XA2080SHROUD, FAN
5XA2799FUEL COOLER ASSEMBLY (SEE INDEX)
6XA3516RING, FAN
7BF4460HOSE
8C1614CAPSCREW - 1/2" - 13NC X 1 1/2"
9E3735FLAT WASHER - 5/16"
10VE4440WASHER
11C1602CAPSCREW - 3/8" - 16NC X 1"
12C1540LOCKWASHER - 1/2"
13VE3461NUT, HEX HEAD
14C0312LOCKWASHER - 3/8"
15C1521NUT - 3/8" - 16NC
16VE3460CAPSCREW, HEX HEAD
17BF5307BAFFLE
18BF3625SIGHT GAUGE ASSEMBLY
19XA3517HOSE, OVERFLOW
20VE1223CLIP
21VE1474CAP - 14 PSI
22BF4956NIPPLE
23BF4201U-BOLT ASSEMBLY
24BE4441ELBOW
25BF4949COUPLING, PIPE
26VE8326BUSHING, HEX - REDUCER
27VE4005CAPSCREW - 3/8" - 16NC X 3/4"
28BF4464FITTING
29BF4463ADAPTER
30BF4461ELBOW
31BF4462SWIVEL
32XA2801HOSE - 1/2" X 9"
Вернуться в каталог

Заявка

Обратная связь