
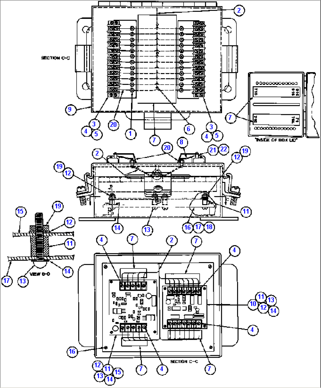
| Item | Part No. | Part Name | Qty | Serial No. |
| 1 | PB5682 | FILTER, HIGH FREQUENCY | ||
| 2 | EC5191 | HARNESS | ||
| 3 | PB7591 | BLOCK, TERMINAL - 12 POINT | ||
| 4 | TC4831 | LOCKWASHER - #6 | ||
| 5 | DD2467 | MACHINE SCREW - #6 - 32NC X 3/4" | ||
| 6 | VH5017 | STRAP, TIE | ||
| 7 | WA6697 | DECAL SET | ||
| 8 | TZ8166 | WIRE | ||
| 9 | TZ1873 | BOX, RFI/ACC | ||
| 10 | EC1806 | CARD, PROPEL DETECT/DDEC INTERFACE | ||
| 11 | PB3527 | SPACER | ||
| 12 | HD8578 | FLAT WASHER - #8 | ||
| 13 | VG6991 | MACHINE SCREW - #8 - 32NC X 1" | ||
| 14 | TF6247 | LOCKWASHER - #8 (EXTERNAL TOOTH) | ||
| 15 | TZ8358 | CARD, RETARD PCB | ||
| 16 | TR8320 | MACHINE SCREW | ||
| 17 | TZ1862 | CARD, MOUNT PANEL | ||
| 18 | H2643 | LOCKWASHER - #10 | ||
| 19 | TV2179 | MACHINE SCREW - #8 - 32NC | ||
| 20 | EB4945 | COVER, FILTER | ||
| 21 | PB8004 | SPACER | ||
| 22 | DF5877 | MACHINE SCREW - #6 - 32NC X 1 1/4" |
