
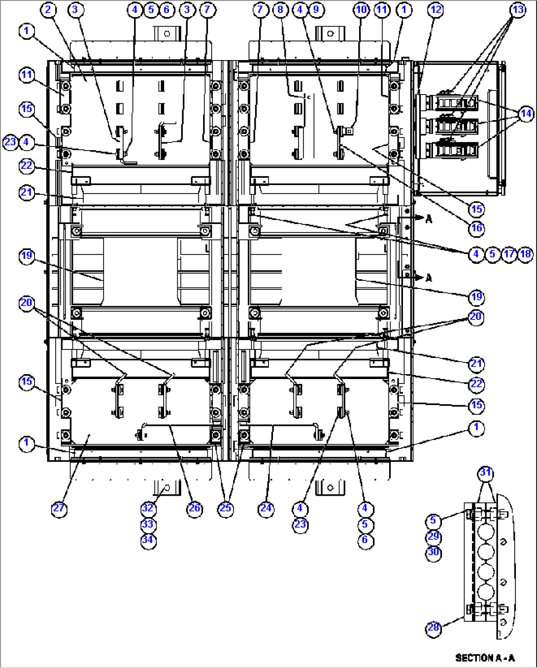
| Item | Part No. | Part Name | Qty | Serial No. |
| 1 | GE0671 | FRAME ASSEMBLY | ||
| 2 | XA2758 | SHIELD | ||
| 3 | XA2749 | BUS BAR - 1/2" THICK | ||
| 4 | GE0041 | WASHER | ||
| 5 | VE4699 | LOCKWASHER - 1/2" | ||
| 6 | VE4698 | NUT | ||
| 7 | XA2751 | BUS BAR - 3/8" THICK | ||
| 8 | XA2744 | BUS BAR - 1/2" THICK | ||
| 9 | VE5061 | CAPSCREW | ||
| 10 | XA2750 | BUS BAR - 1/2" THICK | ||
| 11 | XA2752 | BUS BAR - 3/8" THICK | ||
| 12 | XA2760 | SHIELD, INSULATION | ||
| 13 | BF4452 | MODULE | ||
| 14 | PB6137 | CONTACTOR ASSEMBLY | ||
| 14 | VE1317 | CONTACTOR - GF AND GFR (SEE INDEX) | ||
| 14 | VE3530 | INTERLOCK (SEE INDEX) | ||
| 15 | XA2747 | BUS BAR - 1/2" THICK | ||
| 16 | XA2756 | BUS BAR - 1/2" THICK | ||
| 17 | PB8167 | CAPSCREW - 1/2" - 13NC X 6 1/2" | ||
| 18 | VE4519 | FLAT WASHER - 1/2" (NARROW) | ||
| 19 | GE0017 | MOTOR, BLOWER (SEE INDEX) | ||
| 20 | XA2748 | BUS BAR - 1/2" THICK | ||
| 21 | GE0018 | DIFFUSER ASSEMBLY | ||
| 21 | GE0019 | GASKET | ||
| 21 | GE0020 | GASKET | ||
| 21 | VJ2672 | CEMENT | ||
| 22 | GE0021 | COLLAR ASSEMBLY | ||
| 23 | VE4599 | CAPSCREW - 1/2" - 13NC X 2" | ||
| 24 | XA2753 | BUS BAR, INSULATED | ||
| 25 | XA2755 | BUS BAR, INSULATED | ||
| 26 | XA2754 | BUS BAR, INSULATED | ||
| 27 | XA2757 | SHIELD | ||
| 28 | XA2742 | CLEAT, SUPPORT | ||
| 29 | VC1390 | LOCKWASHER - 5/8" | ||
| 30 | GE0042 | WASHER (NARROW) | ||
| 31 | XA2743 | CLEAT - 4 SLOT | ||
| 32 | MM0164 | CAPSCREW - M20 X 2.50 X 160 | ||
| 33 | 01643-32060 | FLAT WASHER | ||
| 34 | MM0697 | LOCKNUT - M20 X 2.50 |
