
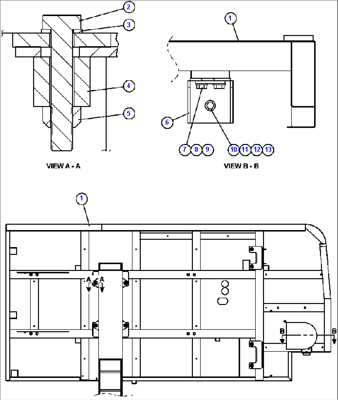
| Item | Part No. | Part Name | Qty | Serial No. |
| 1 | EL3206 | DECK, R.H. | ||
| 2 | MM0128 | CAPSCREW - M20 X 2.5 X 110 | ||
| 3 | 01643-32060 | FLAT WASHER (SPECIAL) | ||
| 4 | EG9144 | SPACER | ||
| 5 | MM0697 | LOCKNUT - M20 X 2.5 | ||
| 6 | EJ2443 | BRACKET | ||
| 7 | EC7589 | PLATE | ||
| 8 | MM0031 | CAPSCREW - M20 X 2.5 X 45 | ||
| 9 | MM0707 | FLAT WASHER - M20 | ||
| 10 | D104556 | BUMPER, RADIATOR STABILIZER | ||
| 11 | VN9780 | FLAT WASHER - 9/16" | ||
| 12 | TR6643 | NUT - 1/2" - 13NC | ||
| 13 | TR5445 | LOCKWASHER - 1/2" |
