
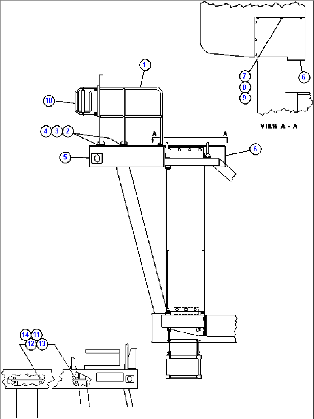
| Item | Part No. | Part Name | Qty | Serial No. |
| 1 | EC6906 | HANDRAIL - RIGHT FRONT | ||
| 2 | C1612 | CAPSCREW - 1/2" - 13NC X 1" | ||
| 3 | C1540 | LOCKWASHER - 1/2" | ||
| 4 | DD5640 | FLAT WASHER - 1/2" | ||
| 5 | EG9726 | DECK - R.H. | ||
| 6 | ED1033 | ADAPTOR, LADDER | ||
| 7 | DF3042 | FLAT WASHER - 3/8" | ||
| 8 | C1601 | CAPSCREW - 3/8" - 16NC X 1 3/4" | ||
| 9 | C0312 | LOCKWASHER - 3/8" | ||
| 10 | PB7491 | CONVEX MIRROR ASSM R.H. (SEE FIG 60029) | ||
| 11 | MM0128 | CAPSCREW - M20 X 2.50 X 110 | ||
| 12 | WA4730 | FLAT WASHER - 3/4" (HARDENED) | ||
| 13 | MM0697 | NUT, LOCKING - M20 X 2.50 | ||
| 14 | EG9144 | SPACER |
