
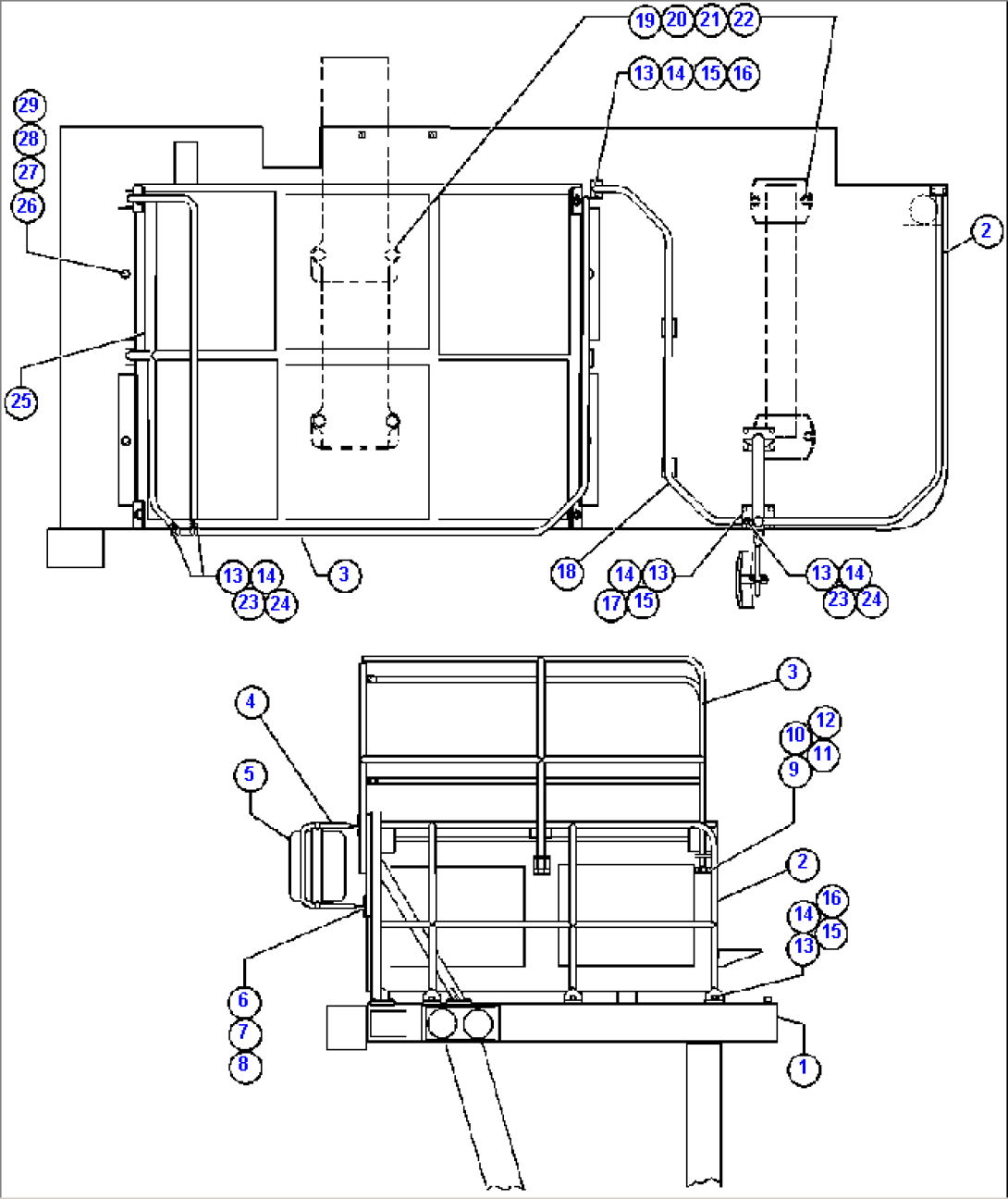
| Item | Part No. | Part Name | Qty | Serial No. |
| 1 | ED2320 | DECK, R.H. | ||
| 2 | EG1064 | HANDRAIL, FRONT | ||
| 3 | EG0646 | HANDRAIL, REAR/FORWARD | ||
| 4 | PB7490 | ASSM, MIRROR ARM R.H. | ||
| 5 | PB7491 | ASSM, CONVEX MIRROR | ||
| 6 | MM0460 | FLAT WASHER - M8 | ||
| 7 | MM0470 | LOCKWASHER - M8 | ||
| 8 | MM0593 | CAPSCREW - M8 X 1.25 X 20 | ||
| 9 | VC7836 | FLAT WASHER - 1/2" | ||
| 10 | TR5445 | LOCKWASHER - 1/2" | ||
| 11 | TR1376 | CAPSCREW - 1/2" - 13NC X 1 1/4" | ||
| 12 | EG0617 | PLATE, THREADED | ||
| 13 | MM0462 | FLAT WASHER - M12 | ||
| 14 | MM0472 | LOCKWASHER - M12 | ||
| 15 | MM0617 | CAPSCREW - M12 X 1.75 X 25 | ||
| 16 | ED6111 | PLATE, THREADED | ||
| 17 | ED6112 | PLATE, THREADED | ||
| 18 | EG0627 | HANDRAIL - FRONT/BACKSIDE | ||
| 19 | 0164332060 | FLAT WASHER | ||
| 20 | MM0475 | LOCKWASHER | ||
| 21 | MM0075 | CAPSCREW - M20 X 2.50 X 60 | ||
| 22 | MM0182 | NUT - M20 | ||
| 23 | MM0619 | CAPSCREW - M12 X 1.75 X 35 | ||
| 24 | MM0179 | NUT - M12 | ||
| 25 | EG0622 | HANDRAIL, REAR | ||
| 26 | 0164332460 | FLAT WASHER | ||
| 27 | MM0476 | LOCKWASHER - 24M | ||
| 28 | MM0167 | CAPSCREW - M24 X 3.00 X 180 | ||
| 29 | MM0183 | NUT - M24 |
