
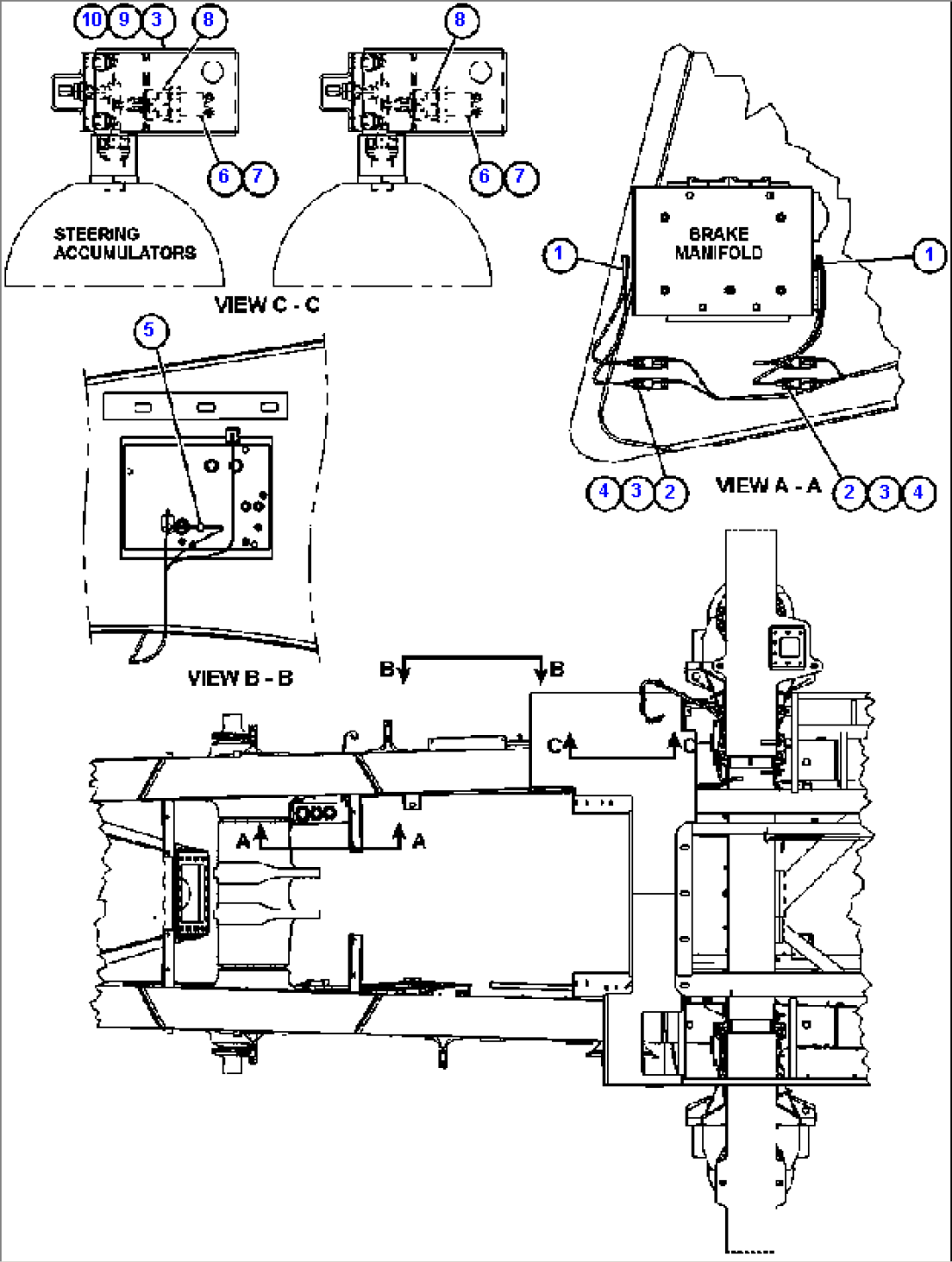
| Item | Part No. | Part Name | Qty | Serial No. |
| 1 | 7861-92-3320 | SENSOR, TEMPERATURE | ||
| 2 | 08053-01512 | CLIP, CONNECTOR | ||
| 3 | MM0471 | LOCKWASHER - M10 | ||
| 4 | MM0178 | NUT - M10 X 1.50 | ||
| 5 | PB7557 | SWITCH, PRESSURE (STEERING PRESSURE) | ||
| 6 | PB8333 | SWITCH, PRESSURE (NITROGEN PRESSURE) | ||
| 7 | TR8279 | GROMMET, RUBBER | ||
| 8 | GAS VALVE ASSEMBLY (1) | |||
| 9 | EJ7888 | COVER | ||
| 10 | MM0603 | CAPSCREW - M10 X 1.50 X 16 | ||
| NS|11 | NOTE: (1) SUPPLIED WITH ACCUMULATOR ASSEMBLY. |
