
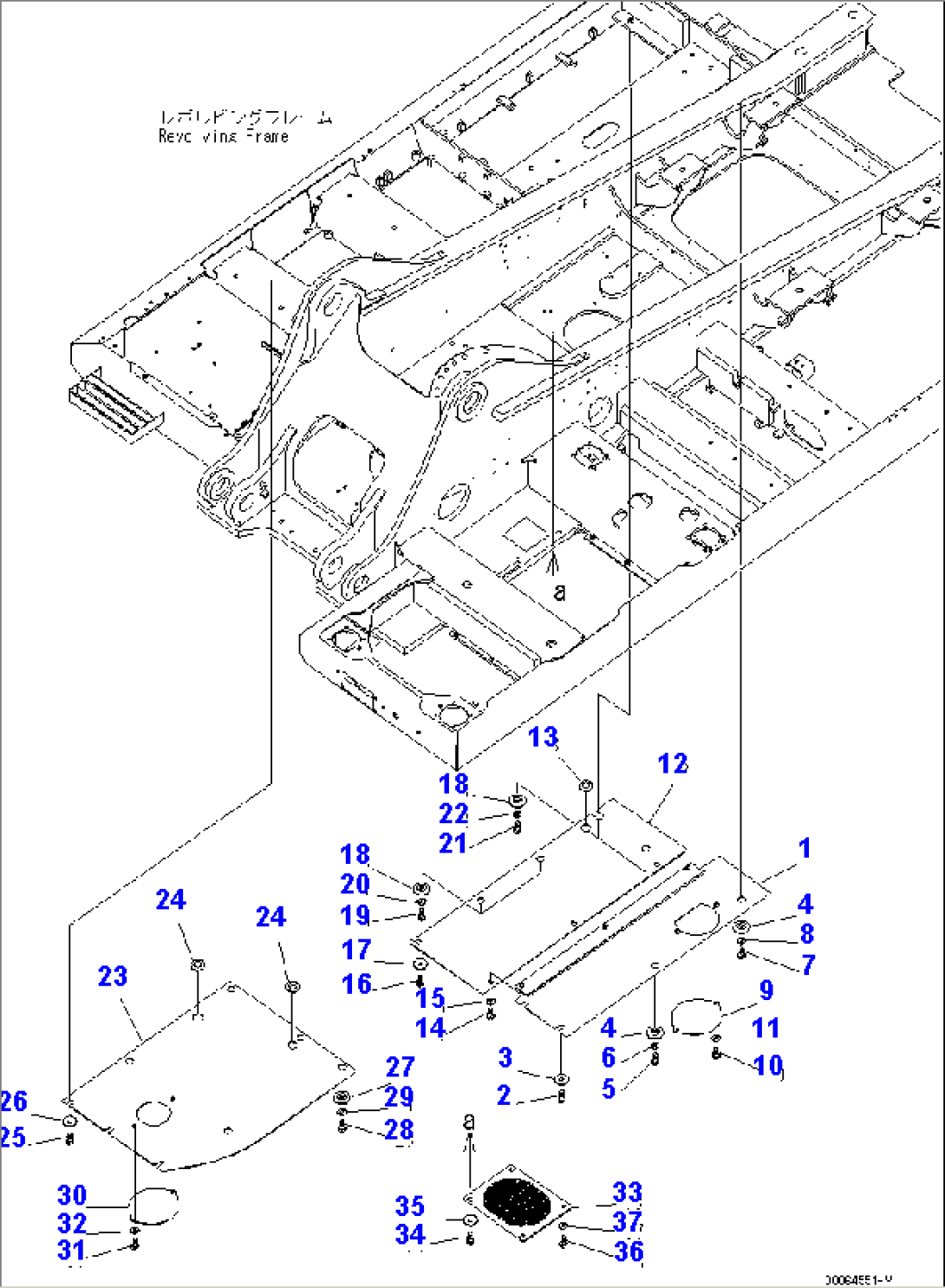
| Item | Part No. | Part Name | Qty | Serial No. |
| 1 | 207-54-77260 | COVER | 60001- | |
| 2 | 01010-81230 | BOLT | 60001- | |
| 3 | 175-54-34170 | WASHER | 60001- | |
| 4 | 208-54-57180 | COLLAR | 60001- | |
| 5 | 01010-81230 | BOLT | 60001- | |
| 6 | 01643-31232 | WASHER | 60001- | |
| 7 | 01010-81235 | BOLT | 60001- | |
| 8 | 01643-31232 | WASHER | 60001- | |
| 9 | 207-54-51440 | PLATE | 60001- | |
| 10 | 01010-81230 | BOLT | 60001- | |
| 11 | 01643-31232 | WASHER | 60001- | |
| 12 | 207-54-78770 | COVER | 60001- | |
| 13 | 08037-03614 | GROMMET | 60001- | |
| 14 | 01010-81230 | BOLT | 60001- | |
| 15 | 01643-31232 | WASHER | 60001- | |
| 16 | 01010-81230 | BOLT | 60001- | |
| 17 | 175-54-34170 | WASHER | 60001- | |
| 18 | 208-54-57180 | COLLAR | 60001- | |
| 19 | 01010-81230 | BOLT | 60001- | |
| 20 | 01643-31232 | WASHER | 60001- | |
| 21 | 01010-81235 | BOLT | 60001- | |
| 22 | 01643-31232 | WASHER | 60001- | |
| 23 | 207-54-78860 | COVER | 60001- | |
| 24 | 08037-03614 | GROMMET | 60001- | |
| 25 | 01010-81230 | BOLT | 60001- | |
| 26 | 175-54-34170 | WASHER | 60001- | |
| 27 | 208-54-57180 | COLLAR | 60001- | |
| 28 | 01010-81230 | BOLT | 60001- | |
| 29 | 01643-31232 | WASHER | 60001- | |
| 30 | 207-54-51440 | PLATE | 60001- | |
| 31 | 01010-81230 | BOLT | 60001- | |
| 32 | 01643-31232 | WASHER | 60001- | |
| 33 | 208-54-77950 | COVER | 60001- | |
| 34 | 01010-81230 | BOLT | 60001- | |
| 35 | 175-54-34170 | WASHER | 60001- | |
| 36 | 01010-81230 | BOLT | 60001- | |
| 37 | 01643-31232 | WASHER | 60001- |
