
| Item | Part No. | Part Name | Qty | Serial No. |
| 1 | AK7339 | SENSOR, TEMPERATURE THERMISTOR | ||
| 2 | EL1148 | HARNESS, L.H. FRAME RAIL | ||
| 3 | PC1537 | SENSOR, PRESSURE - 4000 PSI |

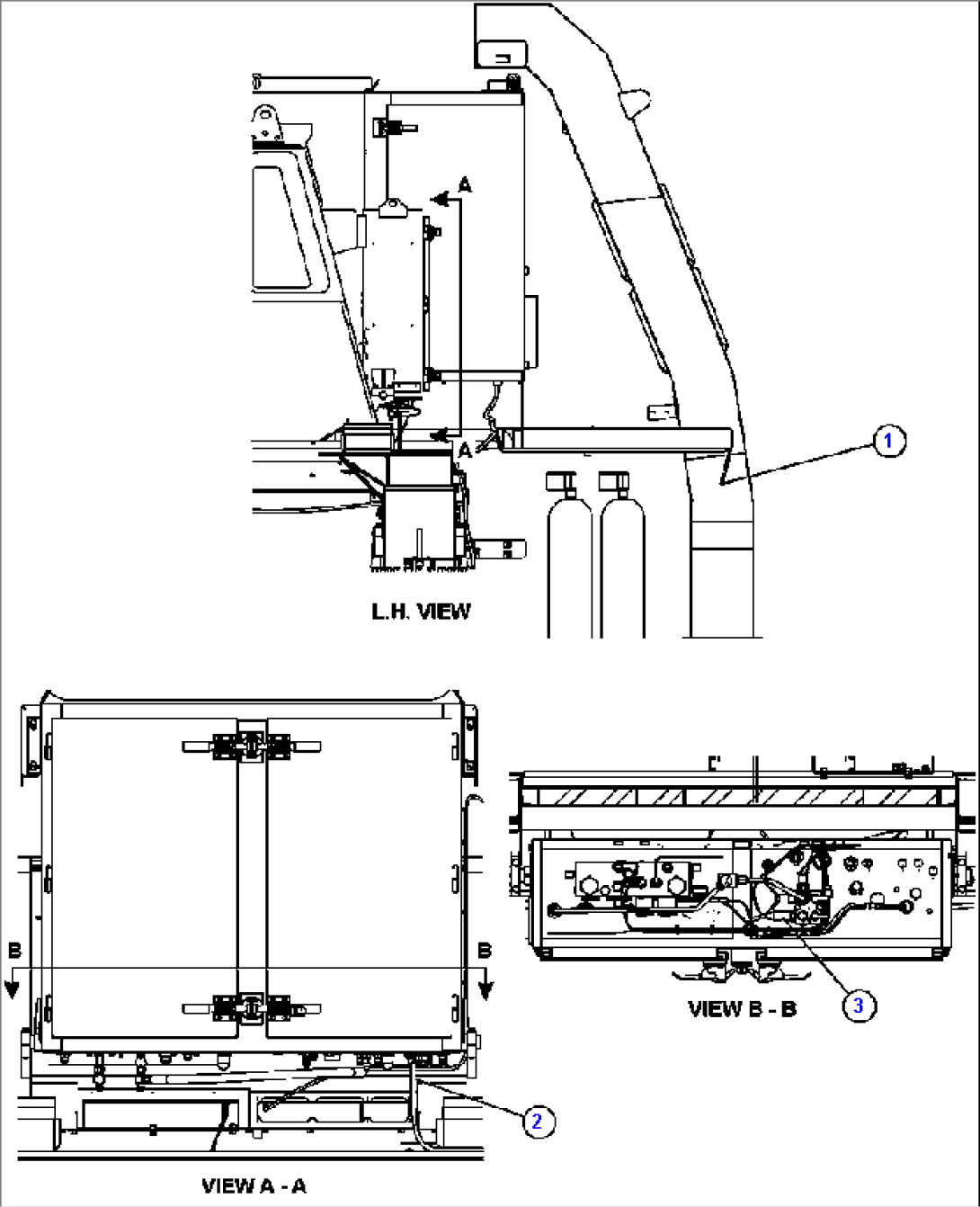
| Item | Part No. | Part Name | Qty | Serial No. |
| 1 | AK7339 | SENSOR, TEMPERATURE THERMISTOR | ||
| 2 | EL1148 | HARNESS, L.H. FRAME RAIL | ||
| 3 | PC1537 | SENSOR, PRESSURE - 4000 PSI |